よくある質問
-
鏡の交換で、既存の穴が隠れる鏡のサイズは?
穴を確実に隠すため、当社では上下左右それぞれ20ミリ以上の余裕を持ったサイズでご提案しています。設置スペースが広く確保できる場合は、より大きめのサイズをお選びいただくと、確実に穴を隠せるため安心です。
サイズ選びに迷われている方は、お気軽にお問い合わせください。専門オペレーターがひとつひとつ丁寧に確認させていただき、ご要望にぴったりのサイズをご提案します。
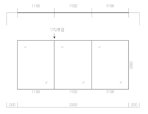
【既存の穴を隠すために最低限必要な鏡の寸法の計算方法】
鏡の設置スペースを
広く確保できる場合鏡の設置スペースに
余裕がない場合鏡の幅 「左穴の端~右穴の端までの長さ」
+40ミリ(左右20ミリずつ余裕)「左穴の端~右穴の端までの長さ」
+20ミリ(左右10ミリずつ余裕)鏡の高さ 「上穴の上辺~下穴の下辺までの長さ」
+40ミリ(上下20ミリずつ余裕)「上穴の上辺~下穴の下辺までの長さ」
+20ミリ(上下10ミリずつ余裕)※既存鏡の設置でできた穴をしっかり隠し、設置場所にぴったりのサイズをご提案するため、お客様に以下の点について採寸・確認をお願いしています。確認後、お電話・メールにてお問い合わせください。
●既存の穴の「左穴の端から右穴の端」の採寸
●穴の位置が上下左右どこにあるか(中央寄り、端に近いなど)
●壁の状態(タイルの目地ではないか、段差・歪みなどはないか)
●設置スペースに洗面台・棚・壁際との干渉がないか -
ミラテクト(鏡用簡易腐食防止塗料)は浴室の鏡にも使えますか?
ミラテクト(鏡用簡易腐食防止塗料)は、浴室など湿度が高く結露の発生しやすい環境でのご使用はおすすめしておりません。
浴室には防サビ効果を備えた鏡「防湿ミラーHG(ハイグレード)」をご提案しています。
-
壁に貼られている既存の鏡を、移転先に移設してもらうことはできますか?
壁に接着した鏡は取り外す際に割れる可能性が高いため、安全面と品質面を考慮し、移設は承っておりません。
そのため、壁に貼られている鏡の移設をご希望のお客様には、新しく鏡を貼り付けていただくことをご提案しています。当社では設置場所・用途にあった鏡を一枚一枚丁寧に施工いたしますので、お気軽にお問い合わせください。
既存の鏡の回収・処分も承っておりますので、ご希望の方は一度お問い合わせください。お問い合わせフォーム・お電話でもご依頼いただけます。
-
届いた「アンティークミラー」に線傷や浅い欠けがある際の修理・交換は可能ですか?
写真のような小さな傷の修理はできかねる為、交換させて頂きます。
線傷(赤丸の中 : 複数の白い線) 浅い欠け(赤丸の中 : 白い点) 

恐れ入りますが、鏡をフレームごと着払いにて下記住所へお送りください。
※○○には、当社の担当スタッフの名前を記載してください。郵便番号 〒910-0851 住所 福井県福井市米松2丁目23-25 OOKABE GLASS株式会社 ○○宛 写真のような小さな傷の修理はできかねる為、交換させて頂きます。
線傷(赤丸の中 : 複数の白い線) 
浅い欠け(赤丸の中 : 白い点) 
恐れ入りますが、鏡をフレームごと着払いにて下記住所へお送りください。
※○○には、当社の担当スタッフの名前を記載してください。郵便番号 〒910-0851 住所 福井県福井市米松2丁目23-25 OOKABE GLASS株式会社 ○○宛 -
店舗にパネルミラーを4枚連結して取り付けたいのですが、自分で設置できますか?
-
「壁ミラー つっぱりタイプ」は組み立てが必要ですか?
「壁ミラー つっぱりタイプ」の組み立て、取り付けはお客様で行っていただく必要があります。
組み立てについて詳しくはこちらをご覧ください。動画付きで分かりやすく紹介しています。
-
鏡のシールフィルムを支給材に貼り付け加工することはできますか?
弊社では貼り付け加工を出来かねます。
申し訳ございませんが、弊社では貼り付け加工をお受けしておりません。ご了承ください。
-
鏡のシールフィルムに使用しているポリエチレンの対候試験データはありませんか?
ポリエチレンの耐候試験データはございません。
耐候試験データはございません。ご了承ください。
弊社で取り扱っているシールミラーは、表面がポリエチレンのハードコート層になりますが、この部分は耐候性がございません。屋内仕様の商品になります。
-
鏡のシールフィルムはアルミ蒸着ですか?
アルミ蒸着です。 -
リビングの壁に600ミリ×600ミリ 3.8キロの鏡を12枚貼っても耐えられますか?
ご希望のサイズ・枚数だと剥がれることはないと思われます。
正確にお客様宅の壁がどれくらいの重みに耐えられるかはお答えできかねますが、一般的な石膏ボードの壁ですと、もっと大きいサイズの鏡を貼っても壁が剥がれるということはございません。今回ご希望のサイズ・枚数でしたら問題なく設置できると思われます。
-
「防湿ミラーHG(ハイグレード)」は国産品ですか?
「防湿ミラーHG(ハイグレード)」は、「国産品」ではなく「輸入品」となります。
-
「シールミラー」の裏面に目盛は入っていますか?
裏面に目盛は入っておりません。
シールミラー(シートミラー)の裏面に目盛や柄など何もありません。裏面も表面と同様に鏡面となっております。
表面 フィルムを剥がす前 フィルムを剥がした後 

裏面 フィルムを剥がす前 フィルムを剥がした後 

-
「壁ミラー つっぱりタイプ」の重量は?
「壁ミラー つっぱりタイプ」は梱包した状態(ダンボール梱包)で約21キロとなっています。
梱包した状態 鏡本体 

約21キロ 約15キロ 「壁ミラー つっぱりタイプ」は、男性ですと1人で、女性ですと2人ほどで運ぶことのできる重さです。割れ物ですので、無理をせず2人以上で持ち運び、取り付けを行うことをオススメします。
その他ご不明な点などありましたら、お気軽にこちら(0120-12-5509)までお問合せ下さい。
-
鏡の厚みによって耐久性は変わりますか?
鏡の厚みによって耐久性が変わることはありませんので、ご安心ください。 -
「インテリアミラーのA-172」を陶器タイルに設置可能ですか?
付属の金具では陶器タイルには取り付けできません。
付属の金具は「石膏ボードの壁」や「ベニア」、「木材壁」のみの対応になるため、陶器タイルへの取り付けはできません。ご了承ください。
陶器タイルへの設置でございましたら、「ミラーマット(両面テープ)」と「ミラーボンド」を用いての貼り付けでしたらば可能です。
ミラーマット(両面テープ)を使用した場合、鏡を取り外す際は鏡を割って取り外すことになりますのでご注意ください。
-
「壁ミラー つっぱりタイプ」はどんな梱包になる?
ダンボール梱包でお届けしています。
お届け時にはこのようなダンボール梱包となっています。
身長158センチの女性スタッフが横に並ぶとこのような感じ。横800ミリ × 縦2000ミリほどのサイズとなっています。女性の方は無理をせず2人以上で運んでくださいね。 -
パネルミラーのゴム脚の高さは何cmですか?
パネルミラーのゴム脚の高さは約1センチ(約10ミリ)です。
-
直射日光がパネルミラーの鏡の裏面に当たることで耐久性に影響はありますか?
直射日光がパネルミラーの鏡の裏面に当たっても、耐久性に影響はありません。ご安心ください。
-
鏡をカットできる最大のサイズを教えてください
長方形の場合でご用意できる最大サイズは1200ミリ×2400ミリです。
長方形の場合でご用意できる最大サイズは1200ミリ×2400ミリとなります。最大サイズの範囲内で異型にカットは可能ですが、形状によってはもう少し小さいサイズでのご提供、となる場合もございます。詳しくは以下のリンクをご覧ください。
-
中性洗剤をかけた上から「シールミラー」を貼ることはできますか?
石鹸水でのご使用をお願い致します。
「水貼り」される場合、中性洗剤ではなく、石鹸水でのご使用を推奨しています。石鹸水であれば、霧吹きで濡らして貼ることができます。
-
「シールミラー」は透けますか?
裏側の色が透けて見えてしまうことはありません。
「シールミラー(シートミラー)」の裏側の色が透けて見えてしまうことはありません。ご安心ください。
シールミラー(シートミラー)は、ホテルの浴室等の鏡の腐食(湿気により背面から黒くなる現象)隠しによく利用されている商品です。
元の壁 貼った状態 

-
パネルミラー用のL字固定金具の高さ(壁に固定する側)は何cmですか?
パネルミラー用のL字固定金具の高さは2.5センチ(25ミリ)です。
-
ステンレス製の鏡のスクラッチキズの補修(磨き直し)は可能ですか?
申し訳ございませんが、弊社ではステンレスミラーのミガキ直し等のご対応が出来かねます。
新しいミラーをご用意することでしたら可能です。サイズや詳しい仕様をお伝えいただければ、1営業日以内にお見積りをご用意いたします。
-
「シールミラー」はカッターで切れますか?
カッターやハサミでお好きな大きさや形に切ることが可能です。 -
「壁ミラーつっぱりタイプ」は床に傷をつけてしまいますか?
壁ミラー つっぱりタイプには、ゴム足が付いていますので床を傷つけてしまうことはありません。ただし、引きずって移動させたり設置する際にぶつけてしまった場合は傷がつく恐れがありますので慎重に扱ってください。
実際にフローリングの床に設置してみた
フローリングの床に壁ミラーを設置しましたが、傷や凹みなどはありませんでした。
-
「ステンレスミラー」を浴室に貼っても大丈夫ですか?
問題ありません。
浴室でもご使用いただけます。ただ、「ステンレスミラー」は厚みが1ミリと大変薄くなっていますので、下地の影響を受けやすく、映り方に歪みが出てしまう可能性がございます。浴室用の「防湿ミラー」がございますので、併せてご検討ください。
-
「表面反射鏡」よりも平坦で薄くて全面反射する鏡はありますか?
表面反射鏡が一番映りの綺麗な平面度の高い鏡となります。
表面反射鏡は、弊社でご用意できる中で1番映りが綺麗で、平面度の高い鏡となります。また、表面反射鏡は最薄1ミリ~ご注文いただけます。
-
「壁ミラー つっぱりタイプ」を連貼りして境界がズレる場合の調整方法を教えてください
「壁ミラー つっぱりタイプ」の映像調整は、以下の手順になります。
「壁ミラー つっぱりタイプ」の映像調整の手順
- 天井の固定を緩める
- 鏡の位置を調整する
- 再び天井に固定する
1.天井の固定を緩める
天井につっぱり棒が固定されたままだと動かせないので、まずは天井の固定を緩めます。
2.鏡の位置を調整する
片側の鏡をもう一方に合わせる形で調整すると合わせやすいです。
3.再び天井に固定し完成
転倒防止のためしっかりと固定してください。設置する壁自体に歪みなどがあると調整しづらいことがございますのでご注意ください。 -
「2つ折り鏡止め」とはどのような金具でしょうか?
「2つ折り鏡止め」は「ツメ金具」とも呼ばれているステンレス製で強度の高い鏡専用の金具です。
ミラーマットなどを併用することで、大型の鏡も取り付けることができますよ。
品番
M-MBR 商品名 取付金具(4個1セット) 納期 1~3営業日 耐荷重 7キロ 販売価格 400円(税別) ツメ金具を使用した鏡の取り付け方法
1.ビス止めする位置に下穴を開ける
2.下の金具をしっかり固定する
3.上の金具はスライドできる程度に緩めに固定する
4.下の金具に鏡を乗せる
5.上の金具をスライドさせて固定する
6.完成
-
「インテリアミラー」をオーダーサイズで製作可能ですか?
インテリアミラーは規格サイズのみの販売となりますので、オーダーサイズの製作はできかねます。
枠ありのオーダーメイドミラーは「アンティークミラー.COM」で販売しておりますので、そちらも是非ご覧ください。
-
「インテリアミラー A-172」を横向きに設置できますか?
横向きにも設置可能です。お客様のお好みの向きでご利用ください。
-
枠の中にある鏡が割れたのですが、修理できますか?
お見積りフォームより、鏡のサイズと裏面・表面のお写真をお送りください。お写真を確認し、修理可能かどうかを判断させていただきます。 -
立て鏡の修理期間を教えてください
お見積フォームより、鏡のサイズと裏面・表面のお写真をお送りください。お写真を確認し、概算お見積りをご用意いたします。
-
軽くて、割れた際に簡単に交換できる姿見用の鏡はありますか?
-
「アルミミラー」と「シールミラー」のサンプルを送ってもらうことは可能ですか?
-
鏡の修理と交換はどちらが安く済みますか?
-
鏡の試験成績報告書をPDFで送っていただけますか?
-
「直径7.5センチの鏡」の修理は可能ですか?
-
割れない鏡をエレベーター内に取り付けたいのですが、どの種類の鏡がおすすめですか?
「ステンレスミラー」や「合わせミラー(普通の鏡とガラスの合わせ)」がよく採用されております。
エレベーター内の鏡は、破損したときの危険性や防火上の内装制限によって材質に制限があるため、「ステンレスミラー」か「合わせミラー」が推奨されています。
-
「樹脂ミラー」を切ったら、切断面がギザギザでした。解消方法はありますか?
紙やすりで削り磨くと切断面は滑らかになります。
数分間、紙やすりで削り磨くと切断面は滑らかになり、ギザギザや凹凸はなくります。
他にご不明な点があれば、お気軽にお問合せください
「樹脂ミラー」のことで、他にご不明な点があれば、こちらのお電話番号(0120-12-5509)までお気軽にお問合せください。
-
リビングの壁に取り付ける鏡に「シケ」が出ないようにしたい
「防錆ミラー」がオススメです。
鏡に水がかかったり、湿気が多い場所に設置されますと「シケ(錆)」が出ます。洗面所やお風呂場で使用する鏡は、一般的なガラスミラーの切り口や裏面に樹脂のコーティングをして防錆加工を施しています。
今回の場合、「防錆ミラー」をご用意されるとよろしいかと思います。弊社でも防錆ミラーはご用意可能です。お気軽にお問合せください。
-
賃貸物件の壁に貼る鏡は、どんなものがありますか?
賃貸物件で使える鏡は、大きく分けて3種類ございます。使用場所に合わせてお選びください。また、当社では安全性を重視するお客様に「割れない貼る鏡」もご用意しています。
住宅の寝室・脱衣所・洗面所・玄関で「貼るタイプの割れない鏡」をご利用のお客様には、アルミミラーをご提案しています。
アルミミラーの使用事例や取付方法をご紹介していますので、ぜひご覧ください。
賃貸物件の壁にDIYで鏡を貼る方法については、こちらのページでご紹介しています。ご自分で鏡を貼り付けたい方はぜひご覧ください。
初心者の方でも簡単!壁紙を剥がさない鏡の貼り方
400ミリ×600ミリ程度の小型の鏡を、壁に貼る方法をご紹介しています。
壁紙を剥がさず簡単に貼り付けられるため、賃貸物件にお住まいの方やDIY初心者の方でも、上手に鏡を設置することができますよ。
-
「フィルムミラー」の枠は全て同じ仕様ですか?
フィルムミラー(リフェクスミラー)は、ご指定いただくサイズによって枠の付き方が異なります。大きいサイズほど、太い四方枠が付くようになります。
各サイズと枠タイプについては、下の表をご確認ください。
枠の付き方についてご質問等ございましたら、お電話・フォームからお気軽にご相談ください。
Aタイプ(左右枠) Bタイプ(左右枠) Cタイプ(四方枠) 側面
(枠奥行)
20ミリ
27ミリ
27ミリ正面
(枠幅)
5ミリ
25ミリ
25ミリ色 シャンパン色 シルバー シルバー 対象の
規格品①450×1200ミリ
②300×1500ミリ
③400×1500ミリ
④600×1500ミリ
⑤800×1500ミリ⑥1000×1500ミリ
⑦850×1700ミリ⑧900×1800ミリ
⑨1200×1800ミリフィルムミラー(リフェクスミラー)は、ご指定いただくサイズによって枠の付き方が異なります。大きいサイズほど、太い四方枠が付くようになります。
各サイズと枠タイプについては、下の表をご確認ください。
枠の付き方についてご質問等ございましたら、お電話・フォームからお気軽にご相談ください。
Aタイプ(左右枠) Bタイプ(左右枠) Cタイプ(四方枠) 側面
(枠奥行)
20ミリ
27ミリ
27ミリ正面
(枠幅)
5ミリ
25ミリ
25ミリ色 シャンパン色 シルバー シルバー 対象の
規格品①450 ×1200ミリ
②300×1500ミリ
③400×1500ミリ
④600×1500ミリ
⑤800×1500ミリ⑥1000×1500ミリ
⑦850×1700ミリ⑧900×1800ミリ
⑨1200×1800ミリ -
フィルムミラーのフィルムを貼り替えてもらえますか?
-
「樹脂ミラー」はハサミやカッターで簡単に切れますか?
ハサミやカッターで簡単に切れます。
「樹脂ミラー」はハサミやカッターで簡単に切ることが可能です。樹脂ミラーですが、鏡面にピンク色の保護フィルムが付いています。保護フィルムを剥がすと鏡として機能します。
樹脂ミラーを切るハサミやカッターで樹脂ミラーを切った様子をご紹介します。
- ハサミで切る
厚紙を切るような感覚で、簡単に切ることができます。ハート型のような曲線も容易に切れます。
- カッターで切る
やや固めの紙をカットするような感覚で切ることができます。下に新聞紙など紙を引くと、力を入れやすく、切りやすくなります。
他にご不明な点があれば、お気軽にお問合せください
樹脂ミラーは薄く柔らかいため、簡単に切ることができます。またカットですが、カッターよりもややハサミの方が切りやすいです。
もし、他にご不明な点があれば、こちらのお電話番号(0120-12-5509)までお気軽にお問合せください。
-
パネルミラーの鏡の厚さが変わると、見た目・映る姿に違いがみられますか?
厚みが厚いほど歪みが生じにくく綺麗に映ります。
鏡の厚みは、厚みが厚いほど歪みや反りが生じにくくなり、その分綺麗に映ります。そのため、厚み3ミリより5ミリの方が歪みが少なく綺麗です。
サイズが大きくなればなるほど歪みが生じやすくなってしまうため、当店では大きなサイズの鏡を製作する場合は厚み5ミリを推奨しています。
-
「樹脂ミラー (プラスチックミラー)」は通常の鏡のようにキレイに映りますか?
通常の鏡と同じようにキレイに映ります。
厚み0.5 ミリの樹脂ミラーですが、平面な場所・モノであれば通常の鏡のようにキレイに映ります。
またクネクネ曲げたり、ロール状に巻けたりできるので、工作・DIYにも使い勝手の良い鏡です。また巻いた跡やクセは残らず元に戻せます。
もしベニヤ板の白壁のように凹凸があるところに貼りますと、下地の影響を受けて歪んでしまいますのでご注意ください。
-
移動式スポーツミラーを複数保管するにはどのぐらい場所が必要?
足部分は重ねることができるので複数枚の収納も場所をとりません。
足部分は重ねておくことができますので複数枚の収納も場所をとることがなく、省スペース収納が可能です。今回は、4枚を重ねて収納した場合を見ていきましょう。
4枚重ねた場合の奥行きは80センチほどになります。移動式スポーツミラー1枚で60センチの奥行きなので、4枚を重ねてもほとんど変わらないことがわかりますね。移動式スポーツミラーの
台数 (枚)奥行
(センチ)1枚 約60センチ 4枚 約80センチ
使用しない時は、このように重ねて部室や倉庫にしまっておくこともできますよ。狭い場所でもスペースをとることなく収納できます。 -
ノンフレームミラーはありますか?
-
トレーニング用の鏡が欲しいです。また設置の際に必要になる部材はありますか?
壁に貼り付ける場合、一番安く下地の影響・歪みが少ない、普通の鏡(ガラスミラー)をオススメします。
サイズは700ミリ × 2000ミリということで、重量が17.5キロあります。この重量に耐えられる設置の際に必要になる部材が「速乾ボンド」、「ミラーマット」、「ミラーボンド」となります。「ミラーボンド」は通常、「コーキングガン」と呼ばれる道具に合体させ使用しますが、「ミラーボンド手絞りタイプ」という新商品がありますので、コーキングガンを持ち合わせていない方は「ミラーボンド手絞りタイプ」をオススメします。
-
ダンスミラーの中古はありますか?
こちらのページで当店で取り扱う鏡の中古品の在庫を確認できます。
-
鏡の枠部分の修理もしてもらえますか?
【枠がプラスチック製の場合】
当社では鏡そのものの加工・修理を専門としているため、プラスチックでできた枠の場合、対応できません。【枠が木製の場合】
木製の枠の場合、修理が可能な場合があります。鏡の全体・裏面・修理する箇所の詳細がわかる画像をお送りいただければお見積りが可能ですので、一度お問い合わせください。 -
施工する鏡の枚数を減らせば、「施工料金」や「副資材費」も抑えられますか?
鏡の取り付けに必要な「施工料金」や「副資材費」は、鏡の枚数に関係なく一定のコストがかかるため、枚数を減らしても大きくは下がらない場合があります。
当社の専門オペレーターがご予算内に抑えられるよう、鏡の種類や施工方法をご提案しますので、「できるだけコストを抑えたい」という場合はお気軽にご相談ください。
-
届いた段ボールに記載のある重量は商品の重量ですか?
段ボールに記載のある重量は、商品の重さではなく、配送用の「容積重量」です。
容積重量とは、荷物の大きさ(体積)から計算された「見かけの重さ」のことで、送料の計算に使われる数値です。
容積重量は「縦×横×高さ(センチ)÷5000」で計算できます。例えば、商品重量10kg、縦50センチ、横50センチ、高さ50センチの段ボールの場合、50×50×50÷5000=25kgが容積重量となります。送料は、実際の重さと容積重量を比べて大きいほうが採用される仕組みなので、この場合は要請給料の25kg分送料がかかるということになります。
-
楕円形や円形のフィルムミラーは製作できますか?
恐れ入りますが、楕円形や円形のフィルムミラーは、加工の際にフィルムに「シワ」や「折れ」が生じやすく、映りに影響が出る可能性があるため、当社では製作をお受けしておりません。
何卒ご理解いただけますと幸いです。
-
アクリルブロックの製作はできますか?
-
アクリルの接着加工はできますか?
-
すでに購入済みの鏡も取り付けてもらえますか?
施工対応は、当社で鏡をご注文いただいたお客様を対象としております。
鏡のお写真をお送りいただければ、取付に必要な部品をご提案いたします。お気軽にお問い合わせください。
-
鏡を交換した場合、今ある鏡は処分してもらえますか?
当社で施工をご依頼いただいた場合、古い鏡の回収・処分も承っています。お気軽にご相談ください。 -
鏡の種類で迷っているのですが、見積はできますか?
鏡の種類が決まっていない場合でも、お見積いただけます。
施工見積フォームより、鏡の種類を「おまかせ」にしてお送りください。当社スタッフがご要望や施工場所に合った鏡をご提案します。
-
浴室鏡を交換してほしいのですが、付いている金具も交換が必要ですか?
既存の鏡と新しく取り付ける鏡のサイズ・厚みが同じ場合は、金具も再利用できるケースが多いです。
現地調査の際に確認いたしますので、一度お問い合わせください。
-
発行された領収書確認時に「ポップアップウィンドウがブロックされました」と表示されるときの対処法を教えて。
ご利用中のブラウザでポップアップブロックが有効になっている場合にこのようなメッセージが表示されることがございます。下記の手順でポップアップブロックを無効にしてからご利用ください。Google Chromeをご利用のお客様
右上のアイコンをクリック
設定をクリック
プライバシーとセキュリティを選択
サイトの設定をクリック
ポップアップとリダイレクトを選択
「サイトがポップアップを送信したりリダイレクトを使用したりできるようにする」にチェックをつける
Microsoft Edgeをご利用のお客様
ブラウザーの上部の […] アイコンをクリック
設定を選択
プライバシー、検索、サービスを選択
サイトのアクセス許可をクリック
すべてのアクセス許可を選択
ポップアップとリダイレクトをクリック
サイトの追加を選択し、https://www.e-kagami.com/を貼り付け・登録する
Safariをご利用のお客様
「設定」(または「環境設定」)を選択
Webサイトのタブを開く
左下のポップアップウィンドウを選択
サイト名の右側のボタンをクリック
[許可]に変更
-
施工計画書に必要な書類を用意できますか?
-
会員情報のメールアドレスを変更できますか?
サイトにログインし、マイページにある『会員情報変更』をクリックします。
『ログインの情報』をご選択いただき、変更内容を入力してください。弊社では、ログイン情報の変更ができませんので、お客様ご自身で変更いただくようよろしくお願いいたします。
-
大型フィルムミラー(連結タイプ)の連結補強プレートはどこに取り付けますか?
連結補強プレートは、ミラーの背面にある連結部分にビスで固定して取り付けます。
フィルム同士をただ連結しただけでは、時間の経過や使用状況によってミラーの間に隙間ができる可能性があります。
そのため、補強プレートを使って広がりを防ぎ、しっかり固定することをおすすめします。 -
スタンドパネルミラーはオーダーサイズで製作できますか?
オーダーサイズでの製作には対応しておりません。
オーダーサイズをご希望の場合は、壁掛けタイプの「パネルミラー」か、キャスター付きの自立式タイプ「移動式スポーツミラー」をおすすめしております。 -
薄く仕上げたいのですが、取付にミラーマットは必須ですか?
ミラーマットは、鏡用接着剤(ミラーボンド)が完全に固まるまでの間、鏡が落下しないよう固定するための補助材です。標準の厚みは3ミリですが、より薄い2ミリのタイプもご用意しています。
どうしても厚みが気になる場合は、扉を水平に寝かせた状態で鏡を貼り、接着剤が固まるまで(およそ1〜2日)そのまま動かさずに置いていただければ、ミラーマットを使用せずに施工することも可能です。
-
薄く仕上げたいのですが、取付にミラーマットは必須ですか?
ミラーマットは、鏡用接着剤(ミラーボンド)が完全に固まるまでの間、鏡が落下しないよう固定するための補助材です。標準の厚みは3ミリですが、より薄い2ミリのタイプもご用意しています。
どうしても厚みが気になる場合は、扉を水平に寝かせた状態で鏡を貼り、接着剤が固まるまで(およそ1〜2日)そのまま動かさずに置いていただければ、ミラーマットを使用せずに施工することも可能です。
-
薄く仕上げたいのですが、取付にミラーマットは必須ですか?
ミラーマットは、鏡用接着剤(ミラーボンド)が完全に固まるまでの間、鏡が落下しないよう固定するための補助材です。標準の厚みは3ミリですが、より薄い2ミリのタイプもご用意しています。
どうしても厚みが気になる場合は、扉を水平に寝かせた状態で鏡を貼り、接着剤が固まるまで(およそ1〜2日)そのまま動かさずに置いていただければ、ミラーマットを使用せずに施工することも可能です。
-
届いた商品を自分で割ってしまった場合の返金額を教えて。
ご注文の商品をお客様が誤って割ってしまった場合、商品代金の100%、かつ、最大60,000円(税込)までを当社にて負担して、商品を再製作いたします。
保証額の割合や上限、保証期間は会員ランクによって異なります。詳しくは下の表、またはこちらをご確認ください。
-
商品のサイズを間違えて指定していた場合の返金額を教えて。
ご注文の商品サイズをお客様が間違えていた場合、商品代金の最大100%、かつ、最大50,000円(税込)までを当社にて負担して、商品を再製作いたします。
保証額の割合や上限、保証期間は会員ランクによって異なります。詳しくは下の表、またはこちらをご確認ください。
※【ブロンズ会員様へのご案内】商品の発送後にサイズ・種類・厚みの間違いが発覚した場合は、保証額が商品代金の50%(上限3万円)となります。発送前に今一度、ご注文内容の再確認をお願いいたします。 -
届いた商品が受け取り時に割れていた場合の返金額を教えて。
ご注文の商品が受け取り時に割れていた場合、商品代金の100%を当社にて負担して、商品を再製作いたします。 -
返品・返金の手続きを教えて。
お問い合わせフォームにて必要事項を記入し、送信ボタンを押してください。担当のスタッフが迅速に対応します。
-
商品の返品・交換・返金対応をしてもらえる期間を教えて。
返金・返品・交換をお受けできる期間は、以下の通りです。
運送中に商品が破損していた場合
商品到着から14日以内・お客様が商品を誤って破損した場合
・お客様が商品のサイズを間違えて注文した場合ブロンズ会員 30日以内 シルバー会員 ゴールド会員 プラチナ会員 90日以内 ※保証額の割合や上限、保証期間は会員ランクによって異なります。詳しくはこちらをご確認ください。
-
返金・返品・交換ができるケースや、保証内容を教えて。
返金・返品・交換ができるのは、以下のようなケースです。それぞれのケースで、保証内容が異なります。
- 運送中に商品が破損していた場合:100%保証
- お客様が商品を誤って破損した場合:最大100%保証(最高上限額60,000円)
- お客様が商品のサイズを間違えて注文した場合:最大100%保証(最高上限額50,000円)
※保証額の割合や上限、保証期間は会員ランクによって異なります。詳しくはこちらをご確認ください。
※以下のような場合は返金・返品・交換をお受けしておりません。
- 取り付け、貼り付け等、施工されている場合
- 第三者に販売された場合
- 送り先から、現場等へ移動された場合
-
インボイス制度に対応していますか?
はい、対応しています。
当社は下記の通り、適格請求書発行事業者登録番号を取得しています。当社から発行する領収書・請求書はインボイスに対応しています。
【登録番号】T121000100810 -
インボイス対応の領収書は発行できますか?
はい、可能です。
マイページの「購入履歴」から、領収書をPDF形式でダウンロードいただけます。
▼マイページはこちら
https://www.e-kagami.com/member/mypage/▼領収書の発行方法はこちら
https://www.e-kagami.com/purchase_guide/payment/#sec-2-10※代金引換の場合は、運送会社との二重発行を避けるため「請求書」を発行いたします。ご希望の方はお気軽にお申し付けください。
-
納品書を送ってもらうための手続きを教えて。
納品書を依頼するための手続きは特にございません。
商品に納品書を同梱します。※当店では金額の記載がない納品書をお送りしています。金額の記載が必要な場合は、注文確認画面の「備考欄」に「納品書への金額掲載必要」とご記入ください。
-
代金引換で支払った場合、領収書は発行できますか?
代金引換でお支払いの場合、運送会社が発行する「受領書」が領収書の代わりになります。 -
領収書発行の手続きを教えて。
領収書の発行手続きは、お支払いした方法によって異なります。代金引換でお支払いした場合
銀行振込(前払い)・請求書後払い・クレジットカード決済・Amazon Payでお支払いの場合
-
到着時間の指定をする場合、指定できる時間帯を教えて。
到着時間を指定できる時間帯は、商品のサイズによって変わります。
-
到着日は、注文日の何日後から指定できるのか教えて。
ご注文いただく商品・サイズによって、製作期間が異なります。
お急ぎの方は、お電話(0120-12-5509)またはお問い合わせフォームにてご連絡ください。
-
到着時間の指定ができないケースを教えて。
以下の条件がどちらも当てはまる場合、日時指定ができません。
- 幅と高さの合計が1400ミリよりも大きい場合
- 商品を個人宛に送る場合
-
希望商品の最短納期が知りたい。
-
注文した商品の到着日が知りたい。
ご注文後の注文確認メールにて「お届け予定日」をご連絡していますので、ご確認ください。 -
送料について
当社まで直接商品を引き取りにお越しいただいた場合、送料が無料になります。
当社OOKABE GLASS株式会社は、福井県福井市に所在しております。お近くのお客様はご利用ください。(※ご来社の時間を事前にご連絡ください。)
-
カート注文後、商品が発送されるまでの時間を教えて。
カート注文後、商品が発送されるまでの時間は、商品によって異なります。発送日が決まり次第、注文後にご連絡します。
お急ぎの場合は、お電話(0120-12-5509)またはお問い合わせフォームまでお問い合わせください。
-
荷揚げ(商品を搬入口から指定の部屋や場所まで運び入れること)をしてほしい場合、依頼する手続きを教えて。
荷揚げのご依頼は、お電話(0120-12-5509)またはお問い合わせフォームで承っております。お急ぎの場合はお電話(0120-12-5509)にてご連絡ください。
※荷揚げには別途費用がかかります。
-
海外発送はできますか?
海外発送には対応しておりません。あらかじめご了承ください。 -
銀行振込(前払い)をする場合、振込先が書かれたメールが届く時間を教えて。
銀行振込(前払い)をする場合、ご注文後、1営業日以内にお振込先や発送日のご連絡をいたします。
(営業日:月曜日~土曜日 営業時間:9:00~18:00) -
支払い手数料はいくらかかるのか教えて。
支払い手数料は以下の通りです。
銀行振込(前払い)・請求書後払いの場合
各銀行にて定められた振込手数料をお支払いください。代金引換の場合
代引金額に応じて、以下の代引き手数料をお支払いください。代金引換額 代引手数料(税込) 1万円未満 330円 1万円以上 無料 -
利用できる支払方法を教えて。
-
カート注文後、注文確認メールが届かない場合の対処を教えて。
注文確認メールが届かない場合、下記のようなことが原因として考えられますので、 一度ご確認をお願いいたします。
- お客様が登録したメールアドレスが誤っている
- 迷惑メール、受信拒否などに設定されている
- メールボックスの容量が一杯になっている
※注文確認メールが届かない場合でも、ご注文がご購入履歴に反映されている場合は、 正常に注文が完了しております。
上記のいずれにも当てはまらない場合は、お電話(0120-12-5509)またはお問い合わせフォームから以下の情報と注文確認メールが届かない旨をお伝えください。
- お客様のお名前
- お客様の電話番号
-
カート注文後、注文確認メールが届くまでの時間を教えて。
カート注文後、1営業日以内に注文確認メールが届きます。
営業日:月曜日~土曜日
営業時間:9:00~18:00 -
施工業者と直接やりとりしてもらう方法を教えて。
ご注文の際、「施工業者と直接打ち合わせ希望」と一言お伝えください。
お客様が建築会社や大工さん、建具店などの施工業者にご依頼されている場合、当店がお客様に代わり施工業者と直接打ち合わせいたします。
-
鏡の施工を依頼する方法を教えて。
無料お見積りフォームにて、お問い合わせを受け付けています。
施工を希望する商品の詳細と、備考欄に「施工希望」と入力してお送りください。
-
DIYで壁に貼りつけてある鏡を交換する方法を教えて。
壁に貼りつけてある鏡を交換する方法は、下の動画をご覧ください。
一般的には「①鏡を割らずに交換する方法」を試してみて、 外せない場合は「②鏡を割って交換する方法」で鏡を交換するケースがほとんどです。
「②鏡を割って交換する方法」を選べば間違いなく外せますが、どちらの方法で交換するか迷った方は、お気軽にお問い合わせください。
-
DIYで壁に鏡を貼る方法を教えて。
DIYでの鏡の取り付け方(貼り付け方)はこちらをご覧ください。
金具での取り付け方法・壁への貼り付け方を動画や写真で説明しています。
-
鏡の取り付け金具(ツメ金具)のサイズを教えて。
鏡の厚さ3ミリ用と5ミリ用サイズをご用意しています。鏡注文時に一緒にご注文ください。
鏡厚3ミリ用
鏡厚5ミリ用 -
コーキングガンの使い方を教えて。
コーキングガンの使い方は、動画で説明していますので、ご覧ください。
-
鏡の取り付けに必要な部材を教えて。
-
特注品の加工・製作が可能か知りたい。
無料お見積りフォームから、ご希望のサイズ・加工などを記載してお送りください。
製作・可否を確認し、お見積りをご返信いたします。
-
鏡の修理を依頼する方法を教えて。
お問い合わせフォームの必要事項を記入し、送信ボタンを押してください。修理可否を判断して、お見積をご返信します。
-
ログイン用のメールアドレスもパスワードも忘れてしまった場合の対処法を教えてください。
お客様のご登録情報を確認しますので、過去のご注文番号を添えてお電話(0120-12-5509)・お問い合わせフォームより一度お問い合わせください。 -
ログイン用のパスワードを忘れてしまった場合の対処法を教えてください。
フォームより、ご登録いただいているメールアドレスをご入力ください。パスワードの再設定方法をメールでお知らせします。 -
パスワードを再設定したいが、再設定用のメールが届かない場合の対処法を教えてください。
再設定用のメールが届かない場合、ご入力いただいたメールアドレスに誤りがないか、今一度ご確認ください。
正しいメールアドレスをご入力いただいているにもかかわらず再設定用メールが届かない場合は、当社でご登録情報を確認の上、再設定方法をご案内いたします。
お手数ですが、お電話またはお問い合わせフォームよりお問い合わせください。
-
会員登録をしたのに割引されていない場合の対処方法を教えて。
OOKABE会員に登録しても割引価格にならない場合、一度ログインし直してから、再度カートにで購入手続きをお試しください。
それでも反映されない場合、お手数ですがお見積りフォームから見積依頼後、ご注文にお進みいただくか、お電話(0120-12-5509)にてご注文いただくようお願いいたします。
-
会員登録前に注文してしまい会員割引が適用されなかった。注文後でも適用できますか?
会員割引はご注文前のご登録が必要となるため、すでにご決済いただいている場合は割引対象外となります。 -
割引が適用される基準を教えて。
会員割引および枚数割引は、当社の基準に基づいて適用されます。割引適用に関する具体的な理由や基準については、個別にお答えすることができかねます。予めご理解いただけますようお願いいたします。 -
使用用途に最適な鏡の種類を知りたい。
無料お見積りフォームにて、お問い合わせを受け付けています。
使用用途など必要事項を入力し、鏡の種類は「おまかせ」を選択してお送りください。当店がおすすめをご提案します。
-
配送のみと施工を含む場合で鏡の金額が違うのはなぜですか?
配送のみの場合は鏡の規格サイズ品を使用できますが、施工を含む場合はサイズオーダー商品扱いとなります。そのため、鏡の金額が異なります。 -
割れないマグネットミラー(アルミミラー)に「銀イオン(Ag)」を含む「ルックプラスお風呂の防カビくん煙剤」を使用しても問題ないですか?
問題なくご使用いただけます。 -
拡大鏡の倍率を5倍程度にしたものはありますか?
当社では2倍の拡大鏡のみご用意しています。 -
フィルムミラーのゴム脚は、縦・横 両方に付けることはできますか?
可能です。
ただし、即日出荷はできかねますのでご注意ください。 -
フィルムミラーの枠なしを並べて設置することは可能ですか?
フィルムミラーは、フィルムを引っ張って鏡を製作しています。そのため、外側のアルミフレームが反って1〜3ミリの隙間が出る可能性があり、並べての使用は推奨していません。並べてご使用になりたい場合は連結タイプがおすすめです。 -
パネルミラーのゴム脚の高さは?サイトに掲載しているサイズはゴム脚を含めてのサイズですか?
ゴム脚の高さは1センチです。サイトに掲載しているサイズはゴム脚を含まない鏡のみのサイズです。 -
アンティークミラーはアーチ状にカットできますか?
できません。四角形または正八角形のみです。 -
鏡の裏の色は選べますか?
製作する工場により、鏡裏の色は異なるため選べません。 -
色ミラーブラックに銀抜き加工はできますか?
できません。すり状のブラスト加工は対応可能です。 -
エレベーター用ミラーは枠が付いていますか?
枠付き、枠なしどちらもご用意可能です。 -
エレベーター用ミラーの枠は鏡面・ヘアラインのどちらですか?
ヘアラインです。 -
壁掛けミラー(部材セット)の取付部材のみを購入できますか?
部材のみは販売していません。鏡に取り付けた状態のみで販売しています。 -
鏡の大きさによって取付部材は変わりますか?
鏡のサイズや重量によって取付部材は変わります。お気軽にご相談ください。 -
アクリルミラーやアルミミラーをカットするための、オススメの道具は?
アクリルミラーの場合はプラカッター、アルミミラーの場合は金属用ノコギリがオススメです。 -
取付部材のみを後から購入することはできますか?
可能です。
こちらからご購入ください。 -
浴室用鏡に撥水のガラスコーティングをしても大丈夫でしょうか?
使用しても大丈夫です。なお、浴室用鏡は小口部分に防錆コーティングが施されています。 -
金物なしで鏡の施工は可能でしょうか?
可能です。ミラーマットとミラーボンドを併用いただければ取付が可能です。
施工方法について詳細は下記ページに動画もございますので、ご参照ください。 -
移動式スポーツミラーは、ブラック色も用意できますか?
ご用意可能です。 -
卓上ミラーはありますか?
当社のアンティークミラーは卓上スタンド加工には対応しておりません。予めご了承ください。 -
パネルミラーの厚みはどれくらいですか?
パネルミラーのサイズが、900ミリ×1800ミリまでは厚み28ミリ・900ミリ×1800ミリ以上は厚み30ミリとなります。
パネル本体の厚みは25ミリです。 -
アルミミラーの切断面はどのようになっていますか?
手が切れない程度の処理が施してある糸面取り加工です。 -
壁掛けミラーの製作最小サイズは?
最小サイズはφ350ミリとなります。 -
OKミラーの枠の厚み・壁から飛び出るサイズ・正面から見たときの枠の厚みは?
各厚みは以下になります。
枠の厚み:6ミリ
壁から飛び出る厚み:13.5ミリ
正面から見たときの枠の厚み:1ミリ -
ガラスの断面を磨きで直角にすることは可能ですか?
直角にする仕上げは対応しておりません。安全にご使用いただくため、1~2ミリほど角を潰しています。 -
鏡にステンレスやアルミの枠をつけられますか?
ステンレス鏡受け(片長チャンネル)を4辺に使うことで、枠のように仕上げることができます。 -
規格品への加工をお願いすることはできますか?
可能です。加工が必要な場合、オーダー価格となります。 -
アクリルミラーは屋外に使えますか?
水がかかるような場所に使うと腐食するため、屋外での使用は推奨しておりません。屋外で使用するならステンレスミラー、防湿ミラーHGなどがおすすめです。 -
ガラスミラー以外の素材に広幅面取りはできますか?
広幅面取りはガラスミラーのみの加工となります。 -
鏡を天井に貼れますか?
天井に貼るならアルミミラーがおすすめです。 部材は販売できないので鏡のみのご用意になります。 -
ガラスミラーの裏面の色は何色ですか?
濃いグレーです。 -
表面反射鏡の反射率はどれくらいですか?
表面反射鏡の反射率は、95%になります。 -
片長チャンネルがなくても取り付けできますか?
片長チャンネルが無くても取り付けは可能です。鏡の横幅が1000ミリ以上の場合は片長チャンネルを使うとより安定するため、当社では片長チャンネルのご使用をおすすめしております。一般的にも浴室や洗面所の横長の鏡によく使用されております。 -
鏡の1平米当たりの単価を教えてください
平米単価ではなく、1ミリ単位で価格が変わります。ご希望のサイズをお教えください。 -
鏡の底辺を床につけて壁に貼ることはできますか?
巾木がなければ貼り付け可能ですが、片長チャンネルを使うほうが取り付けしやすいのでおすすめです。 -
片長チャンネルとツメ金具はどのような時に使用しますか?
横が900ミリ以上の鏡の場合や、鏡を並べて貼る場合、見栄えを良くしたい場合に「片長チャンネル」、7キロ以下の鏡を設置する場合に「ツメ金具」をおすすめしています。 -
注文したのにマイページの購入履歴がありません。
-
領収書DLボタンがありません。
-
会員登録前にカート注文してしまった。購入履歴に反映されませんか?
購入履歴につきましては、弊社からのご注文確認メール送信後に反映されます。 -
ステンレス鏡受け(片長チャンネル)のネジサイズは?
Φ3.5×30ミリです。 -
防湿ミラーとガラスミラーの見え方は変わりますか?
変わりません。
防湿ミラーは小口や裏面にサビ止め加工を施しています。前面には加工していない為、ガラスミラーと見え方は同じです。 -
防湿ミラーに穴あけ加工は出来ますか?
可能です。また、穴あけ部分についても防湿処理がされていますので、そこから腐食する心配もありません。 -
鏡の飛散防止フィルムは表に貼りますか、裏に貼りますか?
裏に貼ります。 -
鏡交換の際、上下のチャンネルも一緒に交換しないといけないですか
腐食等がなければ、既存の金具をそのままご使用いただけます。 -
フィルムミラーとシールミラーの違いは?
フィルムミラー シート状(ペラペラ)ではなく、ボードにフィルムを張った商品なので立て掛けて使用が可能 シールミラー シート状の薄い鏡、ガラスなどに貼り付けて使用可能
-
ツメ金具 4個入(ネジ付き)のネジサイズは?
Φ4×25ミリ -
湿気や結露が多い場所に鏡を設置する場合、両面テープやボンドだけで問題ないですか
水周りの場合は、鏡の周りをコーキング(シーリング)をしっかりしていただければ問題ありません。 -
パネルミラーとガラスミラーの違いは?
いずれ取り外す予定・移動の可能性ある・自分で取り付けするという方にはパネルミラーがおすすめです。
ガラスミラー パネルミラー 取り付け方 ボンドが必要 金具で固定or立て掛け 厚み 5ミリ 30ミリ -
金具なしで取り付けて落下しないか不安です
金具なしでも安心してご利用いただけます。
ミラーマットとミラーボンドを使用した取付は、鏡を割ってはがさなければいけないほど強力なため、大型の鏡を施工する際にも使用されています。 -
OKミラーは防湿加工可能ですか
OKミラーは全て防湿ミラーでのご用意となります。 -
シューズボックスの施工に下地は必要ですか?
シューズボックスの施工には下地が必要です。施工前に、ベニヤ・鉄板などの下地があることをご確認ください。
-
鏡を連貼りする場合ツメ金具でも問題ないですか
連貼りの場合、片長チャンネルをおすすめします。
片長チャンネルを使用することで、鏡の上下の小口が金具で隠れるため、見栄えが良く綺麗に仕上がります。 -
パネルミラーに使用されている鏡の種類は
一般的なガラスミラーです。ガラスミラーをパネルに貼り付け立て掛けられるようにした商品となります。 -
ガラスミラーの厚み公差を教えてほしい
厚みの許容差(JIS R 3202:1996より抜粋)
厚さの呼び名 厚み 許容差 2ミリ 1.9ミリ ±0.2ミリ 3ミリ 3.0ミリ ±0.3ミリ 4ミリ 4.0ミリ 5ミリ 5.0ミリ 6ミリ 6.0ミリ 8ミリ 8.0ミリ ±0.6ミリ 10ミリ 10.0ミリ 12ミリ 12.0ミリ ±0.8ミリ 15ミリ 15.0ミリ 19ミリ 19.0ミリ ±1.2ミリ 厚さ2ミリの鏡の場合、1.9ミリを基準として -0.2ミリ ~ +0.2ミリの範囲で製造されているということになります。
-
飛散防止フィルムが貼ってある鏡と貼ってない鏡では見え方変わりますか
変わりません。
飛散防止フィルムは鏡の裏面に貼るので、見た目は普通の鏡と変わりません。 -
おすすめの広幅面取りの幅を教えてください
価格が安く人気な面取り幅は15ミリです。
より高級感のある仕上がりをご希望の場合は18ミリや24ミリがおすすめです。 -
石膏ボードにツメ金具は取付できますか
アンカーをつかって取付可能です。 -
注文したいのですがどうすればいいですか?
-
商品の見積りをする方法を教えて。
商品のお見積りのご依頼は、お電話(0120-12-5509)または、無料お見積りフォームからお送りください。 -
床用ミラー・カラー床用ミラーは切断面を露呈した状態でも使用可能ですか?
使用可能です。
水がかかるような場所に施工する際は、劣化防止のため、切断面を保護してご使用ください。 -
床用ミラー・カラー床用ミラーは屋外でも使用可能ですか?
屋外でも使用いただけます。
劣化防止のため、中間膜に水分が付着しないよう、コーキング処理などで保護してご使用ください。 -
「片長チャンネル」「パネルミラー用 L字アングル」に同梱されている取付ビスの場所を教えてください。
「片長チャンネル」「パネルミラー用 L字アングル」の本体に貼り付けられています。
-
床置きタイプで、全身映るサイズの姿見が欲しいです。
当社では、床置きタイプの全身サイズ鏡を取り扱っています。お電話・お見積フォーム・カートから、お気軽にお問い合わせください。 -
ピタミラーとマグネットミラーとの違いは?
取り外しがしやすいピタミラーは、金属製ロッカーの外側に鏡を付けたい場合におすすめです。
一方で、厚み 4 ミリと薄型のマグネットミラーは、金属製ロッカーの内側に鏡を付けたい場合におすすめしています。
-
フィルムの効果が感じられなくなった場合のお手入れ方法を教えて
表面の清掃を行うことで性能が復元する可能性があります。
水で濡らしたスポンジなど、柔らかいもので表面を軽くこすり洗いしてみてください。
それでも改善が見られない場合は、洗剤を用いて表面を洗浄してください。洗剤は、「中性洗剤」「ボディーソープ」「弱アルカリ系洗剤」をご使用ください。
清掃の頻度は、2週間に1回が目安です。
-
玄関やウォークインクローゼット等の全身が映る鏡のオススメを教えてください
玄関やウォークインクローゼット等に設置する場合、「ガラスミラー」がオススメです。
-
襖に鏡を貼り付けることはできますか?
襖に鏡を貼り付けることは可能です。
襖に鏡を貼り付けて使用することは可能です。襖のサイズに合わせてサイズぴったりの鏡を製作いたします。
一般的なガラスミラー3ミリ厚がオススメ
貼り付けにオススメな鏡は、一般的なガラスミラーです。5ミリ厚ですと鏡の重量が重く襖の開け閉めが重く感じてしまう恐れがあるため、3ミリ厚での製作をオススメしています。貼り付け方は、壁面に鏡を貼り付ける方法と変わりません。
鏡の貼り付け方
鏡ってどうやって貼り付けるの?と言う方は、こちらをご覧ください。鏡の施工を行ったことがない方でも、簡単・綺麗に鏡を貼り付けることが可能です。
襖を汚したくないという方には「フィルムミラー」
賃貸物件の方や、襖や壁を汚さずに鏡を使用したいという方には「フィルムミラー」がオススメです。立てかけたり、フックに引っ掛けて使用することができる軽量で割れない鏡です。
-
マグネットはサビますか?
マグネットシートは錆びにくい素材で作られているため、マグネット自体に錆びが発生することはありません。
ご使用環境によっては、何らかの影響でマグネットに鉄粉などが付着し「もらい錆び(外部から移った錆び)」が発生する場合が稀にありますが、できるだけ早めに中性洗剤やクリームクレンザーで拭き取ることで簡単に落とすことができます。
そのため、取り付け後1~3日は壁面の状態を確認し、週に1回程度、鏡を取り外して壁面の水滴を拭き取るなど、定期的なクリーニングを行うことを推奨しています。
【錆び・汚れのクリーニング方法】
・クリームクレンザー
クレンザーに含まれる粒子でこすり、サビを優しく取り除きます。浴槽を傷つけない、クリームタイプがおすすめです。・重曹
重曹と少量の液体石けん(または少量の水)を混ぜて重曹をペースト状にしてこすってください。・歯磨き粉
研磨剤入りの歯磨き粉を使用してください。・クエン酸
クエン酸の還元反応により金属のサビをこすらず落とせます。水100mlに対し小さじ1/2のクエン酸を溶かしてクエン酸スプレーをつくってください。(配合はサビの程度により調整が必要です)※サビや汚れに関しては、使用環境に起因する問題となるため、保証対象外となりますことをご了承ください。
-
鏡の厚みによって耐久性は変わりますか?
鏡の厚みによって耐久性が変わることはありませんので、ご安心ください。
-
カラー合わせミラーのサンプルはありますか?
サンプル(有料)もご用意しております。映り方や色味の確認にご利用ください。
サンプルは、姉妹サイトe-sampleからお申し込みください。
お急ぎの方はお電話でも承ります。 0120-12-5509 までお気軽にお電話ください。 -
ハングマンはどのくらいの大きさまで吊り下げ可能ですか?
20kgまで吊り下げ可能です。20kgはかなりの大きさになりますので、壁掛け鏡はほとんど吊り下げできると思っていただいて大丈夫です。20kgを超える場合は補強(落下防止)をするか、かなり大きな鏡の場合は、床に付くように設置されるように提案しています。
壁掛けの補強(落下防止)
ゴム足を使った立て掛け
-
申請する書類として見積書が必要です。作ってもらえますか?
ご希望の商品の品番・サイズなどを私たちにご相談ください。お見積書を作成し、1営業日以内にご連絡させていただきます。
ショッピングカートからご注文いただける商品の場合は、365日24時間いつでも見積書が発行できる「見積書自動発行機能」をご利用ください。
-
アンティークミラーの広幅面取りの加工料金はいくらかかりますか?
鏡の料金と同じく、縦横(A+B)の2辺の合計で金額が決まります。
広幅面取り加工料金の計算例
縦(A)400ミリ横(B)500ミリの鏡の場合
合計が900ミリなので価格表を見ると14,310円14,310円ということになります。〜400ミリ 〜500ミリ 〜600ミリ 〜700ミリ 〜800ミリ ~6,360円(税抜)
(~税込6,996円)~7,950円(税抜)
(~税込8,745円)~9,540円(税抜)
(~税込10,494円)~11,130円(税抜)
(~税込12,243円)~12,720円(税抜)
(~税込13,992円)〜900ミリ 〜1000ミリ 〜1100ミリ 〜1200ミリ 〜1300ミリ ~14,310円(税抜)
(~税込15,741円)~15,900円(税抜)
(~税込17,490円)~17,490円(税抜)
(~税込19,239円)~19,080円(税抜)
(~税込20,988円)~20,670円(税抜)
(~税込22,737円)〜1400ミリ 〜1500ミリ 〜1600ミリ 〜1700ミリ 〜1800ミリ ~22,260円(税抜)
(~税込24,486円)~24,486円(税抜)
(~税込26,235円)~25,440円(税抜)
(~税込27,984円)~27,030円(税抜)
(~税込29,733円)~28,620円(税抜)
(~税込31,482円)〜2000ミリ 〜2200ミリ 〜2400ミリ 〜2600ミリ 〜2800ミリ ~31,800円(税抜)
(~税込34,980円)~34,980円(税抜)
(~税込38,478円)~38,160円(税抜)
(~税込41,976円)~41,340円(税抜)
(~税込45,474円)~41,340円(税抜)
(~税込45,474円)〜3000ミリ ~47,700円(税抜)
(~税込52,470円)※面取幅15ミリの価格です。
※AとBの合計が3000ミリを超えるもの、また1辺が1800ミリを超えるものは別見積になります。〜400ミリ 〜500ミリ 〜600ミリ 〜700ミリ ~6,360円(税抜)
(~税込6,996円)~7,950円(税抜)
(~税込8,745円)~9,540円(税抜)
(~税込10,494円)~11,130円(税抜)
(~税込12,243円)〜800ミリ 〜900ミリ 〜1000ミリ 〜1100ミリ ~12,720円(税抜)
(~税込13,992円)~14,310円(税抜)
(~税込15,741円)~15,900円(税抜)
(~税込17,490円)~17,490円(税抜)
(~税込19,239円)〜1200ミリ 〜1300ミリ 〜1400ミリ 〜1500ミリ ~19,080円(税抜)
(~税込20,988円)~20,670円(税抜)
(~税込22,737円)~22,260円(税抜)
(~税込24,486円)~24,486円(税抜)
(~税込26,235円)〜1600ミリ 〜1700ミリ 〜1800ミリ 〜2000ミリ ~25,440円(税抜)
(~税込27,984円)~27,030円(税抜)
(~税込29,733円)~28,620円(税抜)
(~税込31,482円)~31,800円(税抜)
(~税込34,980円)〜2200ミリ 〜2400ミリ 〜2600ミリ 〜2800ミリ ~34,980円(税抜)
(~税込38,478円)~38,160円(税抜)
(~税込41,976円)~41,340円(税抜)
(~税込45,474円)~41,340円(税抜)
(~税込45,474円)〜3000ミリ ~47,700円(税抜)
(~税込52,470円)※面取幅15ミリの価格です。
※AとBの合計が3000ミリを超えるもの、また1辺が1800ミリを超えるものは別見積になります。 -
アンティークミラーに印刷はできますか?
鏡へのフルカラー印刷が可能です。ウェディングボードをお作りになられる方には、大変人気のサービスです。
-
アンティークミラーの枠だけの購入は可能ですか?
可能です。枠のみの販売はもちろん、枠と裏板を含めた鏡なしの販売も可能です。鏡をすでにお持ちの方や、ご自分で用意される方にオススメです。
「枠のみ」や「鏡なし」のお見積りやご注文
「枠のみ」「鏡なし」の場合、通常の注文と違い内寸の寸法が必要となります(通常は外寸)。当社で枠の太さから計算いたしますので、「枠のみ」や「鏡なし」の場合、1度お電話ください。
-
鏡にエッチングなど、模様を装飾することは可能ですか?
可能です。お客様のご要望の模様で鏡の縁をサンドブラスト加工(エッチング)することで模様を作ります。
当社の用意した模様でご注文いただいくと、デザイン料などの価格を抑えることができるのでオススメです。価格は模様や鏡のサイズによって異なりますので、ご希望の方はお気軽にお問い合わせください。
-
アンティークミラーの大きなサンプルはありますか?
当社の姉妹店「e-sample.jp」にて、レンタル品で、鏡の枠の角20センチほどの「L字のサンプル」がございます。ご希望の鏡のL字サンプルを5つまで専用ケースに入れてお送りします。
鏡が高級に見える「面取り加工(広幅面取り)」の鏡サンプルも一緒にお届けしますので、枠と合わせてみて雰囲気をお確かめください。
返送用の送り状も同封しておりますので、返送も簡単にしていただけます。ケースとL字サンプルの数に限りがございますので、L字サンプルのレンタルをご希望の方はお問い合わせください。
-
アンティークミラーの枠の「幅」「厚み」の違いは何ですか?
-
アンティークミラーを洗面所に取り付けたいのですが、鏡は防湿仕様ですか?
防湿鏡ではありませんが、洗面所であれば、取り付けても問題ありません。実際、沢山のお客様が、洗面所にお取り付け頂いています。ただし、木製なので、お風呂場の中への取り付けは避けてください。
防湿ミラーでのご注文は可能ですので、防湿ミラーをお求めの場合は、その旨をお伝えください。
-
アンティークミラーは、どのような梱包で届きますか?
発泡スチロールで鏡の周りをガッチリ固定して、絶対に割れないようシッカリした梱包になっていますのでご安心ください。
-
「鏡の枠の種類を選ぶ」ところで出てくる価格表は鏡込みの価格ですか?
はい。鏡込みの値段となっています。
-
枠のない鏡がほしいのですが、取り扱いはありますか?
はい、取り扱っています。枠のない鏡は、トップページに進んでいただくと探しやすいです。
-
壁に鏡を貼りたいのですが、大きいものでも大丈夫ですか?
当社がオススメする金具「ハングマン」をご利用いただければ、大きい鏡でも大丈夫です。
-
アンティークミラーの鏡を「高透過ミラー」に変更してもらうことは可能ですか?
可能です。美容室の方からよく「鏡を高透過ミラーに変更してほしい」というご要望があります。高透過ミラーは、名前のごとく、「ガラスミラー」ではなく「高透過ガラス」を使って作られた透明度の高い鏡で、映しだす姿を本当の色で映します。
-
アンティークミラーを自分で壁に取り付けることは可能ですか?
はい、可能です。鏡の取り付け方の動画を載せていますので、「鏡の取り付け方」のページをご覧ください。
-
アンティークミラーの鏡の裏面はどのような感じですか?
通常は写真のような感じになりますが、フレーム(枠)の材質や枠のサイズ、鏡の大きさによって若干異なる場合がございます。
-
アンティークミラーのどの取付け方法のものを選べばいいか分からないです…
お客様のご用途やご利用場所をスタッフに教えてください。オススメのものをご提案させていただきます。
-
枠付きミラーに使用されている鏡の厚みは何ミリですか?
鏡は3ミリだと見た目にも安く感じますので、5ミリの品質の良い鏡を使用しております。
-
円形や楕円形のアンティークミラーは作れますか?
既製品の枠を曲げた円形(楕円形)のミラーの製作はできないのですが、代わりに「インテリアミラー」という既製品の枠付き鏡を販売しておりますので、こちらをご覧ください。
-
鏡の取り付け(設置)に来てくれませんか?
-
商品に付属されている金物や、吊りヒモを別に購入できますか?
可能です。商品に同梱されているパーツの販売も可能です。予備にほしいという方や、すり減ったり壊れたりされた方は、お気軽にご連絡ください。
-
ハングマンの詳細なサイズ(寸法)を教えてください
ハングマンの詳しいサイズは、こちらの「ハングマンの寸法図」をご覧ください。
-
ハングマンの付属のビスの仕様について教えてください
下記の仕様となっております。
ビスの
取付位置直径 長さ 壁側 7ミリ 30ミリ 鏡の枠側 5ミリ 12ミリ -
ハングマンの穴の数が、HP記載の物より多いですが、意味がありますか?
「ハングマン」は仕様変更に伴い、壁側の金具の穴の数が増えました。穴の数を増やすことで、下地の位置が合わなかったときに、他の穴にビスを打てるようにするためです。
通常は、左右の端と真ん中のみビスを打っていただければ大丈夫ですが、万が一、下地の位置が合わなかった場合は、他の穴をご利用ください。
-
アンティークミラーの取付金具の取り付け方は写真の状態で合っていますか?
アンティークミラーの取付金具のお取り付け方法ですが、そのお写真の状態で間違いございません。ご安心ください。
-
アンティークミラーの裏面の見え方を確認したいです。
枠付きアンティークミラーの一例になりますが、こちらの商品でイメージを掴んでいただけます。
-
届いた「アンティークミラー」が希望サイズより若干大きく膨らみがあるのですが交換可能ですか?
恐れ入りますが、サイズ誤差と膨らみの問題は製造上どうしても生じてしまいますので、交換し再度製作させていただいても同じような仕上がりとなってしまいます。ご了承ください。
-
施工直後、ガラスとフィルムの間に水泡や白濁が見えますが、問題ありませんか?
時間が経過すると、それらは自然に消えます。
施工後約7~10日の間、施工時にわずかな水分が残っているため、ガラスとフィルムの間に白濁や水泡が生じることがあります。
これらの現象は、時間の経過とともに徐々に解消されていきます。
フィルムに無理に触れると、後に痕が残る可能性があるため、触れないようにお願いいたします。 -
規格サイズミラーの施工方法について教えてください
規格サイズミラーのサイズに合わせてオススメの施工方法を動画付きでわかりやすく紹介しています。
-
賃貸物件の壁に貼る鏡は、どんなものがありますか?
賃貸物件で使える鏡は、①フレームが無いもの ②パネル製のもの ③接着剤で壁に貼るもの ④金具をつけて壁にかけるもの ⑤立て掛けるものがございます。
また当社では、安全性を重視するお客様に「割れない貼る鏡」もご用意しています。
住宅の寝室・脱衣所・洗面所・玄関で「貼るタイプの割れない鏡」をご利用のお客様には、アルミミラーをご提案しています。
アルミミラーの使用事例や取付方法をご紹介していますので、ぜひご覧ください。
賃貸物件の壁にDIYで鏡を貼る方法については、こちらのページでご紹介しています。ご自分で鏡を貼り付けたい方はぜひご覧ください。
初心者の方でも簡単!壁紙を剥がさない鏡の貼り方
400ミリ×600ミリ程度の小型の鏡を、壁に貼る方法をご紹介しています。
壁紙を剥がさず簡単に貼り付けられるため、賃貸物件にお住まいの方やDIY初心者の方でも、上手に鏡を設置することができますよ。
-
賃貸物件の壁に穴をあけずに鏡を取り付ける方法を教えてほしいです。
こちらのページで詳しく紹介しております。ご確認ください。
-
3kgほどの小型の鏡をミラーマットと速乾ボンドでつける方法は、賃貸物件でも大丈夫でしょうか?
問題ありません。壁紙を剥がさず、穴を開けない施工方法ですので、安心して賃貸物件でも行うことが可能です。使用する取付部材は、ミラーマット、速乾ボンド、マスキングテープとなっています。
-
ダンス練習用に「パネルミラー」を検討しているのですが、なるべく安くするにはどのサイズが良いですか?
ご希望の寸法にもよりますが、定寸の「900×1800ミリ」が1番安くご注文いただけます。もちろんサイズオーダーもできますし、ご注文枚数に応じた割引もございますので、お気軽にお見積のご連絡をください。
-
チアダンス練習時に、移動ができて、割れない、軽い、安い鏡はありますか?
当店では、こちらの鏡をご提案しております。
-
ダンスミラーの中古はありますか?
こちらのページで当店で取り扱う鏡の中古品の在庫を確認できます。
-
自宅のダンス練習用鏡で安さ重視の場合は、何がオススメですか?
ご自宅用のダンスミラーで価格重視の方には「パネルミラー」をご提案しております。
壁に接着剤で貼る必要がなく、立てかける、あるいは金具だけで固定して使えます。
鏡を立てかけて置くだけで設置できる鏡です。スポーツジムやダンス練習などに多く採用いただいています。
-
学校で使うダンス練習ミラーを検討していますが、予算に納まるか見積ってもらいたいです。
当店スタッフにてお見積できます。「無料お見積りフォーム」からその旨をお伝えください。
あらかじめ、下記の情報がありますとスムーズです。
- ご予算の額 ・「縦」「横」どれくらいの寸法のダンス練習用ミラーをご希望か
- 1枚をご希望か、複数のご希望か
- 壁に貼る鏡か、移動する鏡か
- どういった用途で使うか
-
移動式スポーツミラーに保護フィルム(飛散防止フィルム)を貼ることはできますか?
可能です。
「飛散防止フィルム」を貼れば、万が一割れた場合にも破片が飛び散らずケガを防止してくれます。
可能です。
「飛散防止フィルム」を貼れば、万が一割れた場合にも破片が飛び散らずケガを防止してくれます。
-
鏡を貼りたいところに、コンセントやスイッチ、でっぱりなどがあります。その部分に重ならないように穴をあけることはできますか?
可能です。穴をあけたい部分をご指定いただければ、1ミリ単位で穴あけ加工を行います。
図面などをお送りいただき、穴を開けたい部分をご指定ください。
-
施工まで行った場合の見積額を知りたいです。
無料お見積りフォームにて、お問合せを受け付けています。
施工を希望する商品の詳細と、備考欄に「施工希望」と入力してお送りください。
-
必要な鏡の大きさがわかりません。鏡を貼りたい壁の寸法をお伝えしても見積り可能ですか?
可能です。無料お見積りフォームにて、お問合せを受け付けています。
鏡を貼り付けたい壁のサイズと、備考欄に「施工希望」と入力してお送りください。
-
鏡のオンデマンドフルカラー印刷は、枠のある鏡でも印刷できますか?
はい、可能です。当店の姉妹店「アンティークミラー.com」から1000種類以上の枠の鏡をオーダーサイズで製作できます。
-
高精彩ミラーや防湿ミラー等、違う種類の鏡に印刷は可能ですか?
-
オンデマンドフルカラー印刷した鏡は、屋外や水回りで使っても良いですか?
直接水が当たるご使用は避けてください。コーキングをしたり、窓なら印刷面が室内側になるようにしてご使用ください。
-
鏡に映り込む、印刷面の裏側はどうなりますか?
印刷は、まず下地に白を印刷してから、実際のカラーを印刷する2層塗りになります。 したがって鏡に映り込む印刷面の裏側は写真のように白になります。 白塗りなしの1層塗り、通常塗り+白塗り+通常塗りの3層塗りなども条件によって可能です。お気軽にお問い合わせください。 -
鏡への印刷サンプルを見せてもらうことは可能ですか?
貸し出しにて可能です。ガラス印刷のサンプルをご覧になりたい場合は、こちらからお気軽にご連絡ください。
- お電話でサンプルを依頼する:0120-12-5509
- フォームでサンプルを依頼する:お問い合わせ・お見積フォーム
-
鏡の印刷の入稿データはどのように作れば良いですか?
「イラストレーター形式(.ai)」「フォトショップ形式(.psd)」、いずれかの形式で入稿を承っております。当店の姉妹店「オーダーガラス板.com」に手順がございますので、ご覧ください。
どちらのソフトもお持ちではない場合は、まず1度お電話ください。
- お電話で相談する:0120-12-5509
- フォームで相談する:お問い合わせ・お見積フォーム
-
他の鏡の印刷屋さんよりもなぜ安く印刷できるのですか?
当店は鏡を取り扱うガラス屋なので、鏡自体が安いです。
通常の印刷屋と印刷代は同じかもしれませんが、他店の場合はガラス屋から鏡を仕入れることになります。そのため、印刷代と鏡代を合わせた金額でみると、当店の方が安くなるというわけです。
-
鏡に印刷はできますか?
当店で鏡のフルカラー印刷も対応しております。ウェディングボードやパブミラーなどにご利用いただいております。大型ミラーへの印刷も可能です。
-
名入れ価格はおいくらですか?
サンドブラストと塗装をするため、19,000円(税別)~(税込20,900円~)頂いております。 -
名入れ加工の文字サイズの最小サイズは?
名入れ加工できる文字の最小サイズは基本、24pt(8.47×8.47ミリ)となります。 これ以下の文字のサイズをご希望の場合、文字の字体やフォントの種類によって可能な場合がありますので、お問い合わせください。
-
名入れ加工の文字の色は白のみですか?
塗装のため、文字の色も自由です。ただ複雑な色だと、電話やメールでは伝わりにくいと思いますので、原色(青、赤、黄色、白、黒)などでご注文頂けると助かります。ちなみに一番多い注文は白と金色です。
-
アンティークミラーの六角形ミラーの直貼りタイプの注文は可能ですか?
可能です。六角形ミラーを壁に直貼りするタイプも販売しております。
-
高透過仕様のアンティークミラーに広幅面取り加工は可能ですか?
もちろん可能です。高透過ミラーに「広幅面取り加工」することでさらに高級感が増します。価格は、すぐにお見積しますので、お気軽にお問い合わせください。
-
アンティークミラーの高透過仕様の八角形ミラーや六角形ミラーの製作は可能ですか?
八角形、六角形の高透過ミラー仕様も可能です。価格は、すぐにお見積もりしますので、お気軽にお問い合わせください。
-
特殊な八角形の注文の際は、鏡のどこのサイズを指定すれば良いですか?
図の「A」「B」「C」の3辺の寸法をご指定ください。
-
アンティークミラーの八角形ミラーの直貼りタイプの注文は可能ですか?
可能です。八角形ミラーを壁に直貼りするタイプも販売しております。
-
フィルムミラー(スリムタイプ)の映りは?
超高透明なフィルムを採用しており、ガラスミラーのように鉄や鉛を含んでいないため原色・実像を鮮明に再現します。また、フィルムの薄い反射面でズレ・歪みが少なく、明るくクリアな映りとなっています。
詳しくは画像をご覧ください⇩
-
ハングマンは特大で68kgまで耐荷重があるのに、耐荷重が20kgまでと書いてあるのは、どうしてですか?
ハングマン自体には耐加重がかなりあるのですが、鏡の枠が、鏡本体の重量に耐えられないことがあるので、約20kgまでとさせていただいています。
鏡の重量が20kgを超える場合には、鏡の下に補強(落下防止)をしていただくようお伝えをしております。
-
鏡の横幅が1000ミリを超える場合は、ハングマンは使えますか?
鏡の横幅が1000ミリを超える場合は「大」を2つ、1530ミリを超える場合は「特大」を2つ、横に並べてお使いください。
-
ハングマンで鏡を壁に取り付けた場合、壁と鏡の間に隙間ができますか?
約8ミリの隙間ができます。真横から見ると隙間がわかりますが、正面からは隙間があると気にならないです。
-
ハングマンはどのくらいの大きさまで吊り下げできますか?
20kgまで吊り下げ可能です。
20kgはかなりの大きさになりますので、壁掛け鏡はほとんど吊り下げできると思っていただいて大丈夫です。
20kgを超える場合は補強(落下防止)をするか、かなり大きな鏡の場合は、床に付くように設置されるように提案しています。
壁掛けの補強(落下防止)
ゴム足を使った立て掛け
-
枠だけの販売は可能ですか?
可能です。
「枠のみの販売」はもちろん、枠と裏板を含めた「鏡なし」の販売も可能になりました。鏡をすでにお持ちの方や、ご自分で用意される方にオススメです。
「枠のみ」や「鏡なし」のお見積りやご注文について
枠のみや鏡なしの場合、通常の注文と違い「内寸」の寸法が必要となります。※通常は外寸
当社で枠の太さから計算を致しますので「枠のみ」や「鏡なし」の場合、一度お問い合わせください。
-
お風呂や脱衣所にも同じ方法で鏡を貼れますか?
ミラーマットは水に弱いため、今回ご紹介した方法では貼り付けできません。
お風呂や脱衣所に貼り付ける際は、周りをシーリングするか、金物を使った取り付けがおすすめです。
-
3kgよりも重い鏡やサイズの大きな鏡は、どのように施工すればいいですか?
鏡の大きさや用途によって、最適な取り付け方が異なります。
鏡の取り付け方(一覧ページ)から、ご希望の大きさの鏡の取り付け方法をご覧下さい。
-
ミラーマット・速乾ボンド・マスキングテープはどのように購入できますか?
ミラーマットなどの部材は、下のカートで購入いただけるほか、お電話からもご注文が可能です。
部材をお求めの方は、0120-12-5509までお気軽にお問合せください。
-
キャスターの車輪の直径を教えてください
キャスター付きフィルムミラーの車輪の直径はΦ37ミリです。 -
壁ミラー 縦長スリムタイプの重量を教えてください
壁ミラー 縦長スリムタイプの重量は下記です。
サイズ 重量 200×600ミリ 1.7キロ 250×600ミリ 2.2キロ 300×600ミリ 2.6キロ 350×600ミリ 3.0キロ 400×600ミリ 3.5キロ 450×600ミリ 3.9キロ 200×900ミリ 2.6キロ 250×900ミリ 3.3キロ 300×900ミリ 3.9キロ 350×900ミリ 4.6キロ 400×900ミリ 5.2キロ 450×900ミリ 5.9キロ 600×900ミリ 7.8キロ 200×1200ミリ 3.5キロ 250×1200ミリ 4.4キロ 300×1200ミリ 5.2キロ 350×1200ミリ 6.1キロ 400×1200ミリ 7.0キロ 450×1200ミリ 7.8キロ 600×1200ミリ 10.4キロ 200×1800ミリ 5.2キロ 250×1800ミリ 6.5キロ 300×1800ミリ 7.8キロ 350×1800ミリ 9.1キロ 400×1800ミリ 10.4キロ 450×1800ミリ 11.7キロ 600×1800ミリ 15.7キロ -
円形の鏡の取り付け方法を教えてください
ツメ金具を斜めに取り付けてください。その他は四角形ミラーと同じ取り付け手順です。
-
防湿ミラーの施工方法について教えてください
浴室鏡の施工方法を動画付きでわかりやすく紹介しています。
-
大型ミラーの施工方法について教えてください
大型鏡の施工方法を動画付きでわかりやすく紹介しています。
-
顔・上半身を映す姿見ミラーの施工方法について教えてください
鏡のサイズに合わせてオススメの施工方法を動画付きでわかりやすく紹介しています
-
クリアミラーの施工方法について教えてください
クリアミラーのサイズに合わせてオススメの施工方法を動画付きでわかりやすく紹介しています。
-
「リフェクスミラー」という商品を見かけるけど、「フィルムミラー」と何が違うんですか?
同じ商品です。
「フィルムミラー」と「リフェクスミラー」は、販売名は異なりますが、同じフィルム製の割れない鏡です。性能や特徴に違いはありません。
-
自宅でフィルムミラーを使いたいのですが、使えますか?
はい、使えます。
フィルムミラーは、「自宅でもダンスの練習ができる鏡が欲しい」「ダンススタジオのような鏡が自宅にもほしい」という自宅用の鏡をお探しの方にもおすすめです。
壁に立て掛けて置くだけで簡単に設置ができます。また、女性や子供でも簡単に持ち上げられるため、鏡の移動や片付けに手間がかかりません。
-
床から浮かせて取り付けることはできますか?
はい、できます。
専用のL字金具を使って、床から浮かせて取り付けることも可能です。20センチ 〜 40センチ程度浮かせても全身が映るため、サイズを落として価格を抑えたい方にオススメの取り付け方です。
-
通常のステンレスとどこが違うのですか?
反射率が全く違います。ステンレスミラーは鏡面研磨加工により、表面反射率を鏡同等に仕上げてあります。下の写真でボールの映りの違いを御覧ください。
ステンレスミラー (鏡面研磨済み)
通常のステンレス板
-
ステンレスミラーの貼付け方を教えてください
ステンレスミラーの貼付け方はこちらの動画をご覧ください。
-
取り付ける為の「ビス穴」を開ける事は出来ますか?
可能です。穴のサイズ、穴の個数、鏡のサイズにより加工工場が異なる為、価格が変わります。
0120-12-5509でお見積もり致しますのでお気軽にご連絡ください! -
壁掛けミラーを取り付けると、どのくらい隙間があきますか?
約 1センチほど隙間があきます。 -
つっぱりミラーのつっぱり棒の太さはどのくらいですか?
直径19ミリです。 -
鏡の厚みは、なぜ5ミリなのですか?
一般的に姿見の鏡の厚みは市場の90%以上が5ミリとなります。鏡は壁に貼り付けることが多いため、厚みが5ミリより薄い場合、貼り付ける際の下地の影響や取り付け用品(接着剤・両面テープ)の影響を受け、歪んで映ってしまう場合があります。
5ミリの厚みがあれば、全身を映す姿見でも、歪むことがなく貼り付けいただけるため、姿見のほとんどの鏡の厚みが5ミリとなります。
-
回収料はどのように支払いますか?
銀行振込またはクレジットカードでのお支払いに対応しています。
-
鏡を注文せず、回収だけしてほしいのですが可能ですか?
鏡の回収のみの場合も対応が可能です。
-
樹脂ミラーやマジックミラーなど、普通ミラー(ガラスミラー)以外も回収してもらえますか?
普通ミラー(ガラスミラー)以外の特殊な鏡も回収が可能です。回収を希望する鏡がある方は、一度お問い合わせください。
-
全身映る鏡のサイズは?
全身映る鏡のサイズは、鏡を使う人の身長によって異なります。横30センチ × 縦120センチあれば120センチ(小学2年生の平均身長)〜180センチぐらいの人まで全身を映すことが可能です。詳しくはこちら -
「確認用の図面」を作ってもらえますか?
鏡を連続で複数貼る場合など、つなぎ目がどこにくるかや、鏡の割り付けイメージを確認したいと思います。 当社では、図のように注文前の確認用の作図サービスも行っておりますので、安心して鏡をご注文いただけます。作図をご希望の方はお気軽にお問い合わせください。 -
フィルムが破れた場合、修理することは可能ですか?
可能です。有償になりますが、当社に商品を送っていただければ、フィルムを張り替えてお送りいたします。0120-12-5509までお電話ください! -
大量にほしいのですが少しお安くなりませんか?
ある程度、数がまとまれば、コストを抑えることができるかもしれませんので、大量注文の方は価格をご相談ください。 -
送料や梱包費はおいくらですか?
大変申し訳ありませんが、オーダーメードの為、サイズによって送料・梱包費がかなり細かく違います。(大きさや重量によって運送会社や梱包方法が変わる為)
お見積フォームでお見積いただくか、電話でお見積ください。よろしくお願いします。
お見積やご質問は0120-12-5509までお気軽にどうぞ! -
フィルムミラーに名入れ加工はできますか?
可能です。名前の形にカットしたカッティングシートを鏡面に貼付けて製作します。
参考フォントなど名入れ加工の価格や詳細はこちら -
フィルムミラーにキャスターを付けることはできますか?
-
自立するフィルムミラーはありませんか?
ご用意しました。自立するスタンド付きのフィルムミラーを販売開始しました。
サイズは全身が映る61センチ × 182センチ。
スタンドと鏡は分離できますので、移動も軽々、壁にかけても使用できます。
スタンド付きフィルムミラーの紹介ページはこちら -
つっぱりミラーの設置に来てくれませんか?
東京や大阪など一部の地域で可能です。価格は地域や設置するつっぱりミラーの枚数によって異なりますので、ご希望の方はお見積り致しますので、お気軽にお問い合わせください。 -
柱が出っ張っている部分にも鏡は取り付けられますか
①見た目重視タイプ
「見た目重視タイプ」は、よく目に入る面を全面鏡にすることで綺麗に見せることができ、柱が出ている壁にも多く採用されています。
②均一設置タイプ
「均一設置タイプ」は、どの面にも均一サイズの鏡を設置するため、どこから見ても均一な見た目です。意匠にこだわりのある方におすすめです。
③簡単施工タイプ
「簡単施工タイプ」は、四隅をコーキングするため、最も施工がしやすい方法です。
-
2枚以上を並べて貼るときの調整方法を教えてください
つなぎ目に段差ができていないかを触って確認したり、離れて見たりして、映像に違和感がないかを確認してください。鏡がズレて二重に見えるときは、鏡を手で押し、切れて見えるときは、鏡を吸盤で引っ張って調整します。
当社では鏡の位置調整や運搬に使用する「ガラス吸盤」の販売もしております。鏡を押引しても指紋が付かないので位置の調整後も綺麗にご利用いただけます。
※穴が開いたものや凹凸があるものには使用しないでください。
-
鏡を横長に使用する際、長辺の下部へゴム足の取り付け位置を変更できますか?
可能です。 -
室内や2階以上の部屋まで搬入はできますか?
別途費用 (33,000円(税込)~)いただければ、搬入までご対応できます。 -
「転倒保証」ってなんですか?
「つっぱり式の大型ミラーって倒れてこないか心配…」という方のために、当店のつっぱりミラーには1年間の転倒保証をお付けしています。取扱説明書にある正しい使い方をした上で、転倒して鏡が割れてしまった場合、無償修理または交換させていただきます。
※ 人や家具等の被害の保証はできません。震災・天災での転倒は有償保証になります(家財保険等)でお直しください。
-
ガラスミラー(ガラス製の鏡)はどのくらいの衝撃で割れますか?
-
屋外で使える割れない鏡はありますか?
屋外で鏡を使用する場合は、「ステンレスミラー」をおすすめします。割れない・錆びないという優れた特性を持つため、耐久性が求められる屋外でも長く、安全に使用できます。
-
防湿ミラーや高精細ミラー等、種類の違う鏡も扱っていますか?
当社では、防湿ミラーをはじめ、マジックミラーやステンレスミラーなどあらゆる鏡を取り扱っております。
-
鏡の施工出張サービスは、全国どこでも来てもらえますか?
基本的に施工依頼のご相談があった際は、出張に伺わせていただいております。一部出張できない地域もございますが、お客様の地域や状況によって伺える場合もありますので、まずは1度ご連絡ください。
全国すべての地域をできるように、日々サービスエリア拡大中です!
-
「パネルミラー用 L字アングル」は、穴すべての箇所にビス止めが必要ですか?
すべての穴にビスをつける必要はありません。900ミリの場合で3箇所(両端と中心)、1800ミリで6箇所(300ミリピッチ)で取り付けてください。
-
「ブロンズ」から一気に「ゴールド」「プラチナ」にランクアップする方法を教えてください。
お客様のご注文の条件を満たすと、一気に飛び級で会員ランクが上がることがあります。ご注文をいただくほど次回からのご購入がお得になっていきますので、ぜひ会員特典を存分にご活用ください。 -
自分の会員ランクをどこで確認できますか?
「マイページ」から現在のランク・購入回数や購入金額を確認いただけます。
▼ マイページはこちら
https://www.e-kagami.com/shop/member/mypage/
-
購入回数・購入金額の累計は何年間有効ですか?
購入回数・購入金額の累計は、現時点から3年前までが対象になります。3年間の累計購入回数、お買上累計金額で会員ランクが決まります。 -
本体を壁面に取り付ける際の採寸を教えてください。
VESA規格 縦30cm横20cmです。(本体外寸は縦82cm横51.5cm幅5.45cm)
※背面はフラットではなく本体下部に厚みがあり。本体にブラケットを止めるネジの推奨はM6×10mm,ワッシャはM6×20mmです。
-
ACアダプターのサイズを教えてください。
サイズ H160mm W70mm D30mm モニター側の電源線の長さ 1500mm 4φ(途中 30mm 15φ の接続部有り) コンセント側の電源線の長さ 3000mm 7φ -
消費電力は何Wですか?
消費電力は最大80Wです。使用時標準は60Wです。スリープモードの待機時は15W程度です。
-
鏡に曇り止めフィルムを貼って送っていただくことは可能ですか?
可能です。ただし、当社の鏡を購入し、同時に発送する場合のみに限ります。価格は、鏡のサイズおよびフィルムのサイズにより異なりますので、価格はお問い合わせください。
-
フィルムを貼るときに使う「石鹸水」はどのように作りますか?
水 2リットルに対して、食器用洗剤などを2、3滴たらして作ってください。洗剤は白色のものより、透明なものがお勧めです。
-
曇り止めフィルムはなぜ曇らないのですか?
親水性が高い(水と親和性が高く、表面に水が薄く広がる性質がある)曇り止めフィルムに水を掛けると、フィルム表面に薄い水の膜を張ります。 この水の膜が曇りの原因となる水滴や湯気を吸収するため、鏡が曇らない状態になります。
また、水の膜が流れ落ちる時に、汚れも一緒に流し落とす為、曇りの原因となる汚れを抑え、曇り止め効果をより長く継続させます。 -
曇り止めフィルム(浴室タイプ)を浴室以外に鏡に使用できますか?
曇り止めフィルム(浴室タイプ)は水を掛けることにより水の膜を作って曇り止め効果を発揮します。
洗面所など水を鏡に掛けることのできない場所では、曇り止めフィルム(洗面所タイプ)をお使い下さい。 -
鏡が「新品」でもミラークリーナーで磨く必要はありますか?
はい、あります。鏡が新品の場合でも鏡の表面に油膜が付いている場合がありますので、必ずミラークリーナーで表面の汚れを磨いてから、曇り止めスプレーを塗布してください。表面に汚れがあった場合、曇り止めの効果が薄くなったり、短くなったりする恐れがあります。
-
かがみ美人はどのような用途がありますか?
浴室用・洗面所用ともに、鏡の汚れ落としと、くもり止めとしてお使い下さい。
-
かがみ美人(浴室用)はなぜ曇らないのですか?
かがみ美人(浴室用)は、テトラポット状のシリカ成分の膜(くもり止め)で鏡の表面を覆います。そして水やお湯をかけると鏡表面に水分の膜ができます。水蒸気ができても、水分の膜に水蒸気が吸着されるのでくもりが発生しないのです。
-
かがみ美人(洗面所用)はなぜ曇らないのですか?
かがみ美人(洗面所用)は、水分を吸収する作用があり、表面への水滴の吸着を防ぐため、鏡が曇りません。洗面所用を浴室などで使うと水分が多すぎる為、吸収しきれません。
-
かがみ美人のセット内容を教えて下さい
- ミラークリーナー50ml(ミリリットル)
- 研磨用スポンジ(大) 1個
- くもり止め 17ml(ミリリットル)
- コーティング用スポンジ(小) 1個
-
かがみ美人の各溶剤の成分は何ですか?
ミラークリーナー くもり止め 浴室用 - 酸化セリウム
- 混合希土類酸化物
- 水
- 変形シロキサン
- コロイダルシリカ
- エチルアルコール
- 界面活性剤
- 脱イオン水
洗面所用 - 酸化セリウム
- 混合希土類酸化物
- 水
- 非イオン系界面活性剤
- イソプロピルアルコール
- 精製水
浴室用
ミラークリーナー - 酸化セリウム
- 混合希土類酸化物
- 水
くもり止め - 変形シロキサン
- コロイダルシリカ
- エチルアルコール
- 界面活性剤
- 脱イオン水
洗面所用
ミラークリーナー - 酸化セリウム
- 混合希土類酸化物
- 水
くもり止め - 非イオン系界面活性剤
- イソプロピルアルコール
- 精製水
-
かがみ美人(浴室用)は洗面所でも使えますか?
かがみ美人(浴室用)は、表面に水やお湯を掛ける事で曇り止めの効果を発揮します。
水を掛けることの出来ない洗面所の鏡の曇り止めには、かがみ美人(洗面所用)をお使い下さい。 -
食品工場専用ミラーの清掃方法を教えて下さい
食品工場専用ミラーのクリーニングは、柔らかい布で、中性洗剤にて汚れを除去し水洗後乾拭きしてください。
※ 鏡を傷める恐れがあるので、研磨剤入りクリーナーやスチールウールまた、酸性やアルカリ性洗剤および有機溶剤は使用はお避けください。
-
鏡はどのぐらい曲がっていますか?
鏡の大きさによって反りの角度が異なります。
右の画像の場合(200ミリ×280ミリの凹面鏡)で、6°(度)ほど曲がっています。
-
表面反射鏡の用途は?
表面反射鏡の用途で多いのは、「万華鏡を製作する為の鏡」・「一眼レフカメラの中の鏡の修理」・「撮影用の備品」になります。
-
マジックミラーの透過率は?
マジックミラーの透過率は以下の通りです。
ガラス製 10% (±1.5%) アクリル製 10% (-5%〜+10%) -
マジックミラーの透過率の指定は出来ますか?
特注品になりますが、ガラス製マジックミラーは20%(±1.5%)や、
35%(±1.5%)※1等の透過率でお作りすることが可能です。アクリル製マジックミラーは30%(±10%)もご用意が可能です。0120-12-5509 までお気軽にお問い合わせ下さい。※1 現在、透過率35%は欠品中です。
-
透過率による見え方の違いはありますか?
-
ミラーサイネージに最適なマジックミラーの透過率は?
鏡とサイネージ(電子看板)を組み合わせたミラーサイネージにも、マジックミラー(ハーフミラー)が使用されています。
ミラーサイネージにマジックミラーを使用する場合には、10%の透過率がオススメです。 -
プロンプターに最適なマジックミラーの透過率は?
プロンプターの文字を映し出すディスプレイ部分にも、マジックミラー(ハーフミラー)が使用されています。
プロンプターにマジックミラーを使用する場合には、35%の透過率がオススメです。 -
ガラス製とアクリル製の違いは?
マジックミラーの特徴
ガラス製 - 割れる
- 安い
- 小傷が付きにくい
- アクリルに比べて重い
アクリル製 - 割れない
- 軽い
- 小傷が付きやすい
- ガラスに比べ高い
-
マジックミラーの光学的性能は?
マジックミラーの光学性能は以下の通りです。
透過率(%) 透過率公差(%) 反射率 日射 膜面(%) 非膜面(%) 透過率(%) 反射率(%) 吸収率(%) 10 ±1.5 35.0 10.0 8.0 33.2 58.8 20 ±1.5 34.0 24.0 19.0 18.2 62.8 35 ±1.5 21.0 14.5 35.2 12.2 52.6 マジックミラーの光学性能は以下の通りです。
透過率(%) 10 20 35 透過率公差(%) ±1.5 ±1.5 ±1.5 反
射
率膜面(%) 35.0 34.0 21.0 非膜面(%) 10.0 24.0 14.5 日
射透過率(%) 8.0 19.0 35.2 反射率(%) 33.2 18.2 12.2 吸収率(%) 58.8 62.8 52.6 -
マジックミラーに表と裏の違いはありますか?
あります。マジックミラーには、ガラス面(表面)と膜面(裏面)があります。
膜面はガラス面に比べて少し傷がつきやすくなっていますので、保護フィルムを貼ってお届けします。 -
マジックミラーの仕組みは?
当社の運営するYouTubeチャンネル「鏡チャンネル」で「マジックミラーの仕組み」の動画を制作しましたので御覧ください。
-
樹脂カラーミラーは映像は綺麗に映りますか?
当社の樹脂カラーミラーは国産ミラーで、反射率が高く、映像が綺麗に映るのですが、厚みは1ミリと薄いため、大きいサイズで使ったりすると、鏡自体が歪むため、映像が歪んで見えます。 工作などで小さくカットして使う分には歪みが少なくなる分、映像の歪みも減りますので、小さくカットして使うミラーとしてはオススメです。
-
樹脂カラーミラーはどうやって貼ればいいですか?
樹脂カラーミラー(塩化ビニル樹脂ミラー)は工作や装飾で使うことが多く、接着剤(速乾ボンド)や両面テープを使って貼られる方が多いです。
-
フロストミラーに広幅面取り加工はできますか?
可能です。
フロストミラー(タペミラー)に広幅面取りをすると上の写真のように面取りをした部分が鏡になります。 -
広幅面取りしたフロストミラーはどのように使われますか?
-
サンプルを見たいのですが、サンプルはありますか?
サンプルを差し上げることは出来ませんが、レンタル(お貸し)することは可能です。数に限りがありますので、お一人様好きなカラーを2枚まででお願いいたします。サンプルの在庫確認もございますので、サンプル請求はお電話でお気軽にお問い合わせください。
-
塗装カラーミラーという商品はありますか?
塗装カラーミラーという商品を販売していましたが、色ムラがあり、製品として問題が多かった為、廃盤になりました。代わりに「カラー合わせミラー」の販売を開始しました。
-
カラー合わせミラーの「壁への貼付け方」は?
カラー合わせミラーの壁面への貼付け方は「鏡の施工方法④【特大鏡(〜36kg)の施工方法】」をお勧めしています。
-
枠付きの色ミラーは作れませんか?
あります。姉妹サイトのアンティークミラー.comの数百種類の枠と色ミラーを組み合わせた鏡をお作りすることが可能です。
-
ピタミラーはどのような映りですか?
超高透明なフィルムを採用しており、ガラスミラーのように鉄や鉛を含んでいないため原色・実像を鮮明に再現します。また、フィルムの薄い反射面でズレ・歪みが少なく、明るくクリアな映りとなっています。 -
ネオジウム磁石とはどのような磁石ですか?
ネオジウム磁石とは、現存する永久磁石の中でも最も強力な磁石です。CD プレーヤー、携帯電話、電気自動車など幅広い範囲で使用されています。
-
ピタミラーの化粧枠の色は?
シルバー(S)をご用意しております。
高級感があり、どんなインテリアとも馴染みやすいデザインです。 -
3ミリや5ミリなどの厚みのある樹脂ミラーはありますか?
-
樹脂ミラーは映像は綺麗に映りますか?
当社の樹脂ミラーは国産ミラーで、反射率が高く、映像が綺麗に映るのですが、厚みは0.5ミリと薄いため、大きいサイズで使ったりすると、鏡自体が歪むため、映像が歪んで見えます。 工作などで小さくカットして使う分には歪みが少なくなる分、映像の歪みも減りますので、小さくカットして使うミラーとしてはオススメです。
-
樹脂ミラーはどうやって貼ればいいですか?
樹脂ミラー(プラスチックミラー)は工作や装飾で使うことが多く、接着剤(速乾ボンド)や両面テープを使って貼られる方が多いです。
-
円形にカットしたいのですが、どうすればいいですか?
円形カッターという、紙などを円形にカットするカッターで可能です。
-
ゴムヘラは売っていますか?
シールミラーを貼るときに、泡を抜くために使うゴムヘラのようなものは、スキージという道具で、車のウィンドウフィルムなどをガラスに貼るときに使われる道具です。販売も可能です。ご入用の方は、シールミラーと一緒にご注文ください。
商品画像 商品名 価格 
スキージ ネット特別価格
398円(税別)商品
画像
商品名 スキージ 価格 ネット特別価格
398円(税別) -
シールミラーの剥がし方は?
角を剥がせば、簡単に剥がすことが出来ます。スクレーパーというフィルム剥がしの道具もございます。動画を用意しましたのでご覧ください。あっという間に剥がせますよ!
商品画像 商品名 価格 
スクレーパー(シール剥がし)
替え刃3枚付きネット特別価格
1,480円(税別)商品
画像
商品名 スクレーパー (シール剥がし)
替え刃3枚付き価格 ネット特別価格
1,480円(税別) -
映像に歪みはないのですか?
鏡面自体の歪みは商品を見ていただければ分かると思いますが、歪みは無いのですが、貼る場所の下地の影響をもろに受けます。歪んだりでこぼこしている場所ですと貼った後に鏡面に歪みの影響がでます。極力平面な場所、窓ガラスなどの裏の平面な場所等に貼られることをお薦めします。壁などは一見歪んでいないように見えても、歪んでいたり、クロスが凸凹になっていたりしますのでご注意ください。
-
まっすぐな壁に装飾用シールミラーを貼ったのに鏡面がボコボコになります
壁や建具の表面は一見、平らに見えますが、表面は凸凹しているケースが殆どです。装飾用シールミラーもガラスなど確実に平らな場所に貼れば、シールミラー本来の映像性能を出せますが、壁や建具などは写真のように凸凹になることがほととんどです。壁などに貼って映像に性能を求められる方は、装飾用シールミラーはお勧めできません。
-
装飾用シールミラーは屋外や浴室などで使用できますか?
装飾用シールミラーは水に濡れても剥がれない商品です。屋外や浴室などでの使用も可能です。屋外で直射日光に長時間当たる場所へ設置した場合、劣化はございます。
※発売して約2年屋外で使用していますが、現在使用できないほどの劣化はございません。
-
石鹸水は水にどのくらい洗剤をいれればいいですか?
500cc(500ミリリットル)の水に対して、洗剤を2~3滴程度いれてください。
-
ベニア板のザラザラした面に装飾用シールミラーは貼れますか?
貼れません。
ベニア板のザラザラした面やコンクリート、壁紙の上などには、貼っても剥がれてしまいます。
ガラスのようなつるつるした素材に貼ってください。 -
フィルムミラーは割れませんか?
割れません。但し、フィルム面を強く押したり、鋭利なものをあてたり、専用クリーナークロス以外の布で拭かないようにご注意下さい。
-
寸法の詳細を教えて下さい
-
枠なしのフィルムミラーも作れますか?
製作可能です。枠無しのフィルムミラーもお作りすることがでますので、お気軽にお問い合わせください。
-
フィルムミラーの「枠あり」、「枠なし」で強度は変わりますか?
ほぼ変わりません。ただし、枠があったほうが枠を持って移動できるので、持ってる部分が傷みにくくなります。
-
フィルムミラー1枚を「L字金具」で固定したいのですが可能ですか?
連結タイプで紹介されているL字金具なら可能です。ただし、フィルムミラー本体にあらかじめビス穴を開ける必要があります。
-
フィルムミラーに「L字金具」用の穴はあけられますか?
フレームがある部分であれば、フィルムミラーにL字金具用の穴あけ加工が可能です。無料でご希望の位置への穴あけをいたします。
-
データはどのような形式で送ればいいですか?
Illustrator(イラストレーター)形式(AI形式)でお送りください。バージョンはCS5まで対応可能です。
文字(フォント)を送られる場合は、アウトライン化した物で送ってください。 データを作成される場合、右の図のように、外周 2センチ はカット出来ない為、2センチ の余白を付けてデータの作成をお願いします。データ入稿用メールアドレス: kagami@gmcc-glass.com
-
自立するフィルムミラーはありませんか?
ご用意しました。自立するスタンド付きのフィルムミラーを販売開始しました。
サイズは全身が映る61センチ × 182センチ。
スタンドと鏡は分離できますので、移動も軽々、壁にかけても使用できます。
スタンド付きフィルムミラーの紹介ページはこちら -
キャスター付きのフィルムミラーはありませんか?
ご用意しました。軽量で割れない移動が簡単なキャスター付きフィルムミラーはこちら。体育館等に持ち込みされる方におすすめのミラーです。
-
フィルムミラーに名入れ加工はできますか?
可能です。名前の形にカットしたカッティングシートを鏡面に貼付けて製作します。
参考フォントなど名入れ加工の価格や詳細はこちら -
フィルムミラーの付属品はどのような物ですか?
①〜⑤
全てのフィルムミラーに付属
- ① クリーナークロス×1
- ⑦ ゴム脚×2個
小型から中型のフィルムミラーに付属
- ② 両面テープ×2本
- ③ L型ヒートン×2本
- ④ Sフック×2個
- ⑤ チェーン×1本
- ⑥ 吊り金具×2
※規格サイズ①〜⑦とオーダーサイズ W100センチ × H150センチ より小さな物になります。
※付属するチェーンの長さは、「フィルムミラーの横幅 + 10センチ」になります。 -
アクリルミラーのサンプルはありませんか?
サンプルの用意は可能です。サイズのご指定がなければ無料ですので、製品の確認にご利用ください。 サンプルのご依頼は 0120-12-5509 までお気軽にどうぞ!
-
アクリルミラーは屋外で使用できますか?
アクリルミラーは屋内用です。屋内、屋外にかかわらず高温多湿の環境での使用は、腐食が生じる場合がございますのでお避けください。屋外で使用の場合はステンレスミラーをお薦めいたします。
-
アルミミラーに穴開け等の加工は出来ますか?
もちろん可能です。通常の丸い穴あけの他にも右下のような角穴加工も可能です。 角穴加工はコンセント等を避ける為に加工をされるお客様が多いです。
アルミミラーの穴あけ加工等 0120-12-5509 まで、お気軽にお問い合わせください。 -
アルミミラーを屋外で使用できますか?
アルミミラーは水分の有るところでは腐食が発生することがあります。
屋外・屋内にかかわらず水気の多い場所での使用はお避けください。 -
アルミミラーの貼付け方(取り付け方)を教えてください
アルミミラーの貼付け方は通常の鏡と同様な貼付け方になります。
下の動画をご覧下さい。3キロ以下の小型のアルミミラーの場合
3キロ以上のアルミミラーの場合
-
アルミミラーの清掃方法を教えて下さい
アルミミラーのクリーニングは、柔らかい布で、中性洗剤にて汚れを除去し水洗後乾拭きしてください。
※ 鏡を傷める恐れがあるので、研磨剤入りクリーナーやスチールウールまた、酸性やアルカリ性洗剤および有機溶剤は使用はお避けください。
-
アルミミラーの小口(側面)を隠すものはないですか?
アルミミラーの小口(側面)を隠す、L字型の金物(アルミミラーエッジフレーム)をご用意しました。当社でお客様のアルミミラーのサイズに合わせたエッジフレームをお作りします。
取り付け方は、鏡に両面テープを貼り、ミラーエッジフレームをかぶせるだけなのでとても簡単です。
アルミミラーエッジフレーム価格表(4辺分の価格)
4辺の合計寸法 価格(一式) ~180センチ 3,940円(税別) ~360センチ 5,260円(税別) ~540センチ 6,580円(税別) ※4辺の分の価格です。
※コーナーは45°(度)カットになります。
※別途梱包・送料が掛かります。 -
2ミリや3ミリの厚みのあるステンレスミラーはありますか?
ございます。2ミリや3ミリのステンレスミラーの販売は可能です。
ただ、1ミリと違い、在庫しておりませんので、入荷する枚数によって価格が変動したり、少々お時間を頂く場合がございます。納期や価格のお見積もりは直ぐにお出しすることができますので、0120-12-5509 まで、お気軽にお問い合わせください。 -
寸法の詳細を教えて下さい
-
名入れ加工はできますか?
可能です。名前の形にカットしたカッティングシートを鏡面に貼付けて製作します。
参考フォントなど、名入れ加工の価格や詳細はこちら -
フィルムが破れた場合、修理することは可能ですか?
可能です。有償になりますが、当社に商品を送っていただければ、フィルムを張り替えてお送りいたします。0120-12-5509 までお電話ください!
-
両面をフィルムミラーにすることは出来ますか?
体育館などで使われるお客様で、両面に鏡を貼る場合が増えております。
当社では両面をフィルムミラーにしたキャスターミラーが可能です。品番 サイズ
W(横)×H(高さ)×D(鏡の厚さ)重量 価格 SGC-01W 90センチ×196センチ×9センチ 19.2キロ ネット特別価格
252,000円(税別)SGC-02W 120センチ×196センチ×9センチ 22.8キロ ネット特別価格
299,800円(税別)※高さ(H)はキャスター及び足を含めたサイズです。
複数台数のお見積やご質問は 0120-12-5509 までお気軽にどうぞ!
品番 SGC-01W SGC-02W サイズ 90センチ×196センチ×9センチ 120センチ×196センチ×9センチ 重量 19.2キロ 22.8キロ 価格 ネット特別価格
207,900円(税別)ネット特別価格
249,900円(税別)※高さ(H)はキャスター及び足を含めたサイズです。
複数台数のお見積やご質問は 0120-12-5509 までお気軽にどうぞ!
-
全身映りますか?
鏡は「鏡の高さが目の高さ以上あれば全身が映る」といわれています。
移動式スポーツミラー「スクールタイプ(90センチ×185センチ)」の場合、目の高さが185センチ(身長でおよそ195センチ)のまでの方が全身映る設計になっています。実際に195センチの外国人の方にお願いしてみたところ、問題なく全身映りました。
一般的な日本男性(170センチ)の場合、手を上げた状態でも全身映るので、ご安心ください。
※ 写真は、既製品の「スクールタイプ(90センチ×185センチ)」に170センチの男性を映したイメージです。
-
映像に「歪み」はありませんか?
当社は平面性に優れた鏡、また同じように平面性に優れたボードを使用して製作していますので、歪みはほとんどありません。
当社の移動式ミラー
ボードと鏡の間に隙間がない
壁に歪みが生まれにくく映像が綺麗
当社のキャスター付き鏡は、ボードと鏡に隙間ができていないため、鏡に歪みが生まれにくく綺麗な映像を映し出すことができます
市販の移動式ミラー
ボードと鏡の間に隙間がある
鏡がたわんで映像が歪みやすい
ボードと鏡の間に隙間ができており、鏡がたわんで映像が歪みやすくなっています
当社は平面性に優れた鏡、また同じように平面性に優れたボードを使用して製作していますので、歪みはほとんどありません。
当社の移動式ミラー
ボードと鏡の間に隙間がない
壁に歪みが生まれにくく映像が綺麗
ボードと鏡に隙間ができていないため、鏡に歪みが生まれにくく綺麗な映像を映し出すことができます。
市販の移動式ミラー
ボードと鏡の間に隙間がある
鏡がたわんで映像が歪みやすい
ボードと鏡の間に隙間ができており、鏡がたわんで映像が歪みやすくなっています。
-
壁近くに並べた場合、どのくらいの隙間が空きますか?
30センチほど壁から鏡のパネルまで隙間があきます。
壁との隙間をなくした鏡がご必要でしたら、下記の2点の鏡がオススメです。
パネルミラー
男性1人で5分で取り付けできるパーソナルジムに人気な鏡
こんな方にオススメ
3枚以上並べて大きな鏡として使用する方
つっぱりミラー
天井と床で支えるから近くで飛び跳ねても倒れないつっぱり式ミラー
こんな方にオススメ- 賃貸やテナントなど壁を傷つけることができない場所にお取り付けする方
-
連結させた状態で移動出来ますか?
移動式スポーツミラーが壊れる恐れがあるので、移動させる時は連結用固定金具(蝶ネジ)を外してから移動させてください。
-
部位ごとの詳しい寸法を教えてください
人気サイズの「スクールタイプ」、「スタジオタイプ」の詳しい寸法は、下図となります。
↓画像をクリックすると拡大します。パネル(裏板)は、耐久性と軽さを追求した25ミリ厚のボードを使用。見た目もそれほど厚くなく、シンプルだと評判です。
-
移動式スポーツミラーの重さはどのくらいですか?
例えば、鏡パネルとキャスターを合わせて 60センチ × 160センチ のサイズで、約16キロ。その他のサイズの重量は、こちらでご確認ください。
移動式スポーツミラー重量、鏡パネルとキャスターを合わせた重量です。
移動式スポーツミラー既製タイプ
90センチ × 185センチ 25キロ 120センチ × 203センチ 46キロ 移動式スポーツミラーサイズオーダー
60センチ 90センチ 120センチ 160センチ 16キロ 22キロ 36キロ 190センチ 19キロ 26キロ 43キロ 210センチ 26キロ 37キロ 48キロ 230センチ 28キロ 40キロ 53キロ -
緩衝材はついていますか?
パネルと脚の緩衝材として、目立ちにくい透明の緩衝材をお付けしています。パネルの底面2箇所に緩衝材が付いた状態でお届けいたします。
-
自分で簡単に組み立てられるか心配。説明書はありますか?
商品に「組み立て説明書」、工具(スパナ)が付属しております。図のようにキャスター付きの脚を付属の六角ボルトで固定するだけで、非常に簡単です。組み立て説明書は、事前にこちらからご覧いただけます。
当社の若い女性スタッフ2人に実際に「移動式スポーツミラー」を組み立ててもらいました。撮影の際、2人とも初の組み立てでしたが、スムーズに組み立ててくれました。
-
移動式スポーツミラーを組み立てに来てくれませんか?
地域によって対応可否がありますが、まずは1度ご相談ください。お客様の地域で対応が可能かお答えしますね。
-
商品の送料や梱包費はおいくらですか?
-
鏡が割れたときは破片が飛び散りますか?危険か心配です。
「ガラス製の鏡は割れやすい」と思われている方が多いですが、実際のところ、ガラスの鏡は意外と強く、人や物がぶつかったぐらいでは簡単には割れません。野球ボールを鏡に投げる実験の動画を撮影してみましたので、ご心配の方は一度ご覧ください。
「ガラス製の鏡は割れやすい」と思われている方が多いですが、実際のところ、ガラスの鏡は意外と強く、人や物がぶつかったぐらいでは簡単には割れません。野球ボールを鏡に投げる実験の動画を撮影してみましたので、ご心配の方は一度ご覧ください。
万が一倒れても、裏側に大量のミラーボンドを使用して貼り付けてあるため、割れても破片が飛び散ることが少ないのが特徴。飛散防止効果があります。
-
万が一鏡が割れたら、修理はできますか?
可能です。鏡がパネルに接着されていますので、パネルミラーそのものを交換いただくことになります。その際にはキャスターを含まないので、移動式スポーツミラーを新品で購入するよりもお安く修理できます。
-
割れない移動式スポーツミラーは製作できませんか?
割れない「アクリルミラー」や「ステンレスミラー」を用いて、割れない移動式スポーツミラーを製作することもできますが、アクリルミラーやステンレスミラーは歪みが強いのが欠点。
「アルミミラー」を使用したキャスターミラーをオススメします。ゴルフや野球の練習場など球を使う場所でアルミミラー仕様にされる方もたくさんいらっしゃいます。
-
移動式スポーツミラーの両面に鏡を貼ることはできますか?
可能です。両面に鏡を貼ると、裏側の鏡が一回り小さくなりますので、あらかじめご了承ください。裏側の鏡の大きさは写真でご確認ください。
-
下が畳でも取り付けできますか
床が畳でも問題ありません。鏡の下に布を敷くことで、畳の劣化を防げます。
-
隙間なく並べることはできますか
できます。枠がない鏡のため、並べて大きな鏡を作り出します。
-
取り付け時の注意点はありますか
天井近くのつっぱりアジャスターをしっかり締めて設置してください。強く締めることでスプリングが天井と床に力を加え、しっかり固定できます。
-
これまでつっぱり式で倒れたという報告はありますか
まれにあります。設置時にしっかり固定できていないと倒れることがありますので、ご注意ください。
-
壁ミラー の詳しい寸法を教えて下さい
-
壁ミラーつっぱりタイプの重量を教えて下さい
「壁ミラー つっぱりタイプ」の重量は下記の通りです。
寸法 重量 ホームサイズ 800ミリ × 1,800ミリ 16kg ビジネスサイズ 900ミリ × 2,000ミリ 20kg ミラーつっぱりタイプの重量は下記の通りです。
重量 寸法 ホーム
サイズ16kg 800×1,800ミリ ビジネス
サイズ20kg 900×2,000ミリ -
壁ミラーの厚みを教えて下さい
ホームサイズ、ビジネスサイズどちらも厚さは 3センチとなっております。
-
床から天井まで突っ張りした全体イメージはどんな感じですか?
天井高(天井から床までの高さ)が 2.49メートルの場合、突っ張りしたイメージは写真のような感じになります。
最大 2.6メートルまで突っ張りすることが可能です。
(右の写真はホームサイズを設置した場合のものになります。)
-
間仕切りとして使用できますか?裏面はどんな感じですか?
間仕切りとしての使用など、壁に沿った場所でなくても使用上は問題ありませんが、裏面はパネルではないため写真のような感じになります。
-
女性でも取り付けできますか?
女性でも簡単に取り付けが可能です。女性スタッフが設置しているところを動画におさめてみましたので、ご心配の方はご覧ください!
スライドバーにつっぱりアジャスターを取り付ける際、つっぱりアジャスターのナットを反時計回りに回しきってから設置してください。
-
身長175センチですが、全身鏡に入りますか?
ご安心ください。全身鏡に入ります。
鏡に映るサイズは身長175センチの方が両手を広げた場合、鏡の幅は90センチあれば映ります。両腕を垂直に伸ばした場合は、200センチあれば映ります。
ビジネスタイプは幅90センチ × 高さ200センチなので、調度良い大きさでオススメです。
-
もっと簡単に移動ができる鏡はありませんか?
自立ができ、キャスターを付けることで移動も簡単な鏡がございます。
移動式スポーツミラー
部活動やスポーツで用いられるキャスター付きの移動式ミラー
こんな方にオススメ- 頻繁に移動させて使用したい方
-
壁を傷つけずにパネルミラーをしっかり固定する方法はありますか?
転倒防止金具 315円(税別)
パネルミラー上部と壁面に取り付け固定します。
壁に取り付けた場合も穴がほとんど目立たないため、賃貸や壁を傷つけたくないという方にオススメです。小さな穴もあけることができない場合は、床と天井で支えるつっぱりミラーをオススメいたします。
つっぱりミラー
天井と床で支えるから近くで飛び跳ねても倒れないつっぱり式ミラー
こんな方にオススメ- 賃貸やテナントなど壁を傷つけることができない場所にお取り付けする方
-
パネルミラーの設置に来てくれませんか?
東京や大阪など一部の地域で可能です。L字アングルを使った貼り付けや連貼りも可能です。価格は地域や設置するパネルミラーの枚数によって異なりますので、ご希望の方はお見積り致しますので、お気軽にお問い合わせください。
-
割れて危険ではありませんか?
「ガラス製の鏡は割れやすい」と思われている方が多いですが、実際のところ、ガラスの鏡は意外と強く、人や物がぶつかったぐらいでは簡単には割れません。野球ボールを鏡に投げる実験の動画を撮影してみましたので、ご心配の方は一度ご覧ください。
「ガラス製の鏡は割れやすい」と思われている方が多いですが、実際のところ、ガラスの鏡は意外と強く、人や物がぶつかったぐらいでは簡単には割れません。野球ボールを鏡に投げる実験の動画を撮影してみましたので、ご心配の方は一度ご覧ください。
万が一倒れても、裏側に大量のミラーボンドを使用して貼り付けてあるため、割れても破片が飛び散ることが少ないのが特徴。飛散防止効果があります。
-
パネルミラーの重さはどのくらいですか?
例えば、鏡パネルと鏡を合わせて 60センチ × 150センチ のサイズで、約 13キロ になります。
そのほかのサイズの重量は、こちらでご確認ください。パネルミラー重量 (鏡とパネル合わせた重量です)
60センチ 90センチ 120センチ 150センチ 13キロ 20キロ 35キロ 180センチ 16キロ 24キロ 41キロ 200センチ 24キロ 36キロ 46キロ 220センチ 26キロ 39キロ 51キロ -
パネルミラーを自立させる事はできませんか?
パネルミラーの背面にスタンド(足)を取り付けた「スタンドパネルミラー」がございます。
足には転倒防止チェーン&滑り止めゴムを付けてありますので、転倒の恐れを極限まで減らした構造にしてあります。シンプルで大型の自立ミラーをお探しの方に早くも大変好評です。
スタンドパネルミラー
パネルミラーに折りたたみの足を付けた、自立式の超大型ミラー
こんな方にオススメ- 壁から離れた場所で使用したい方
-
映像に歪みはありませんか?
パネルミラーは、平面性に配慮した鏡とパネルを使用しています。
パネルと鏡の間に隙間ができにくい構造のため、映像の歪みが出にくく、きれいな映りでご使用いただけます。
-
ブラックタイプの「エッジ部分」の色はどうなっていますか?
「PREMIUM BLACK(プレミアムブラック)」は、パネルの「エッジ部分」「ウラ面」共に黒色です。
-
割れないパネルミラーは製作できませんか?
割れないパネルミラーの製作は可能です。ただし、アクリルミラーやステンレスミラーは歪みが強いため、アルミミラーを使用したパネルミラーをお薦めします。ゴルフや野球の練習場など球を使う場所でアルミミラー仕様にされる方が沢山いらっしゃいます。
キャスター付きフィルムミラーという軽量・割れない・歪みがない鏡もありますので、そちらもご検討ください。
キャスター付きフィルムミラー
ポリエステルフィルムを張ってパネル状にした鏡で、女性でも持ち上げられるぐらい軽く安全です。
こんな方にオススメ- 移動が簡単で割れない鏡をお探しの方
通常のガラスミラーのパネルミラーは割れはしますが、ボンドで接着してある為、飛散しにくい構造になっています。価格を安く抑えたい方は通常のパネルミラーをオススメします。
-
高精彩ミラーのパネルミラーは製作可能ですか?
可能です。価格はお見積下さい。通常の鏡は、普通のガラス(みどり色ガラス)を使って製作されているため、映し出す映像がすこし緑色が含まれた色で映ります。本当の色を映し出す鏡完全透明のガラスを使った鏡「高精彩ミラー」のパネルミラーも製作可能です。
「確認用の図面」を作ってもらえますか?
鏡を連続で複数貼る場合など、つなぎ目がどこにくるかや、鏡の割り付けイメージを確認したい思います。
当社では、図のように注文前の確認用の作図サービスも行っておりますので、安心して鏡をご注文いただけます。作図をご希望の方はお気軽にお問い合わせください。
-
TOTO や INAX の耐食鏡の取り扱いはありますか?
-
浴室用鏡は曇り止め鏡ではないの?
よくある勘違いですが、浴室用鏡を曇り止め鏡だと思っている方がいらっしゃいます。浴室用鏡は湿気による腐食を抑えるだけで、曇り止めの効果は一切ありません。
曇り止め鏡をご希望の方は、「ヨゴレーヌ(ウロコ防止ミラー)」をご覧下さい。
-
規格サイズ以外のオーダーサイズで製作できますか?
製作可能です。
サイズを教えていただければお見積もりいたします。
※鏡の重量7キロ未満まで -
鏡を並べて貼った時のつなぎ目はどうなりますか?
写真のような感じになります。壁自体にに歪みがある場合、つなぎ目の映像が段差になる場合がございます。
-
鏡の重量はどれくらいですか?
厚みや大きさによって異なります。
鏡(ガラス)の比重は2.5です。計算式は【縦方向の長さ(ミリ)】×【横方向の長さ(ミリ)】×【厚み(ミリ)】× 2.5 ÷ 1000 になります。
例:縦1000ミリ × 横900ミリ × 厚み6ミリ × 比重2.5÷1000=13,500g(グラム)
=13.5キロお見積やご質問は 0120-12-5509 までお気軽にどうぞ!
-
送料や梱包費はおいくらですか?
オーダーメイドのため、サイズによって送料・梱包費が細かく違います。(大きさや重量によって運送会社や梱包方法が変わります。)
まずは、お見積フォームや電話「0120-12-5509」からお気軽にお見積ください。金額を具体的にお出しできます。
-
大量にほしいのですが少しお安くなりませんか?
ある程度数がまとまれば、コストを抑えられることがあります。大量注文の方は価格をご相談ください。 -
鏡を取付けるミラーマットや金具は、鏡に付属していますか?
お客様ごとに取付方法が異なるため、付属しておりません。別途購入が必要です。
鏡のサイズに合わせて必要な部材をご提案させていただきますので、お電話「0120-12-5509」でお気軽にお問合せください。オンラインでご注文をする場合はこちら。
※速乾ボンド・コーキングガン・マスキングテープは姉妹店の「ガラスのホームセンター ギヤマン」でもご購入いただけます。
-
ピアノ線がないのですが、購入できますか?
-
鏡の「壁への貼付け方(取り付け方)」を教えてください
鏡の取り付け方(貼付け方)はこちらをご覧ください。
金具での取り付け方法や、壁への貼付け方を動画や写真で説明しています。 -
鏡の取付にオススメな下地はありますか?
使用する金具や金物によって施工可能な下地の種類が異なります。一般的に、石膏ボード(壁紙を剥がす必要有)・コンパネ・コンクリート・モルタルの下地の上からは施工可能ですが、下地によってアンカープラグが必要になりますので詳しくはお問い合わせください。また、次の点にご留意ください。
鏡を取り付ける際の下地のポイント- 耐水合板・石膏ボードなどを使用する場合は9ミリ以上の厚さのものを用いる
- 壁紙、クロス、レザー張りの下地は、その上からでは支持力が期待できないので、鏡の取付け部分は剥がす必要がある
- モルタル・コンクリートは吸水率が大きいため、両面テープと接着剤の接着力は湿気により大幅に落ちるので、必ず受け金物を併用すること
下地施工後、モルタルなら1カ月以上、コンクリートなら2カ月以上の乾燥期間が必要 - 下地の不陸の範囲は±5ミリ以内に納まるようにする
±3ミリ以下が理想だが、不陸±5ミリ以下なら、映像のゆがみや不連続性の調整は可能 (±5ミリを超えると下地の修正が必要)
-
縦長の規格鏡を横長にして使用しても問題ありませんか?
縦横を逆にしても問題なくご使用いただけます。取り付け方等、ご不明な点がありましたらお問い合わせフォームよりお気軽にご相談ください。 -
「鏡を交換」したいのですが、どうすればいいですか?
鏡の外し方(交換方法)はこちらをご覧ください。
PPバンドやピアノ線を使用した鏡の外し方・交換方法を動画や写真で説明しています。 -
浴室の鏡が「キャビネット」の中に入っていて交換できないので、上から鏡を貼り付けても大丈夫ですか?
上からでも鏡を貼り付けできますが、当店ではオススメしておりません。金具や鏡がスライドできない場合は、鏡全面にガムテープを貼り、全面を割ることで、既存の鏡を外すことができます。既存の鏡を割って、外し、新しい鏡を貼り付けいただくことをオススメします。
鏡の取り外し方がご不明な際は、お写真いただけましたら、取り外し方法をご案内いたします。遠慮なくお申し付けください。
-
鏡の寸法公差(サイズの誤差)はどれくらいですか?
ご指定が無い場合、寸法公差(サイズの誤差)は「±1ミリ」となります。※厚みや鏡の種類によって変わる場合がございます。
指定のサイズより大きくなると困る場合は「+0ミリ指定(+0ミリ〜-2ミリ)」、小さくなると困る場合は「-0ミリ指定(-0ミリ〜+2ミリ)」なども可能です。鏡の種類や厚みによっては、「±1ミリ」よりも少ない範囲での公差(サイズの誤差)も可能な場合もございます。ご希望の場合はお申し付けください。
-
全身映る鏡のサイズは?
全身映る鏡のサイズは、鏡を使う人の身長によって異なります。横30センチ×縦120センチあれば120センチ(小学2年生の平均身長)〜180センチぐらいの人まで全身を映すことが可能です。詳しくはこちら
-
施工や交換・採寸に出張で来てもらうことはできますか?
可能です。鏡の施工や交換・採寸に出張で行くことが可能です。 一部、出張できない地域もございますので、お電話いただければお見積りや出張可能な地域かお伝えできます。
お電話「0120-12-5509」で、お気軽にお問い合わせください。
-
枠をつけることはできますか?
鏡に枠をつけることは可能です。専用枠として、「ミラーエッジフレーム」をご用意しております。ミラーエッジフレームは、ステンカラー・ホワイト・ブラックの3色からお選び頂けます。
意匠性の高い枠が希望の場合は、姉妹サイトの「アンティークミラー.com」をご覧ください。
※一部対象外の商品がございます。詳しくはお問い合わせください。
商品名 価格 ミラーエッジフレーム (全色)
~900ミリ1,600円
1,600円ミラーエッジフレーム (全色)
~1,350ミリ2,250円
2,250円ミラーエッジフレーム (全色)
~1,800ミリ2,850円
2,850円ミラーエッジフレーム (全色)
~2,700ミリ4,100円
4,100円ミラーエッジフレーム用 コーナーパーツ
(ホワイト・ブラック) 4コセット1,120円
1,120円ミラーエッジフレーム用 コーナーパーツ
(ステンカラー) 4コセット2,200円
2,200円商品名 価格 ミラーエッジフレーム
(全色)
~900ミリ1,600円
1,600円ミラーエッジフレーム
(全色)
~1,350ミリ2,250円
2,250円ミラーエッジフレーム
(全色)
~1,800ミリ2,850円
2,850円ミラーエッジフレーム
(全色)
~2,700ミリ4,100円
4,100円ミラーエッジフレーム用
コーナーパーツ
(ホワイト・ブラック)
4コセット1,120円
1,120円ミラーエッジフレーム用
コーナーパーツ
(ステンカラー)
4コセット2,200円
2,200円【アルミフレーム付き】DIYで取付できる「OKミラー」もおすすめです
OKミラーはシンプルなアルミフレーム付きの壁掛けミラーです。
ドッコ式と呼ばれる引っ掛けるタイプの金具と強力なマグネットで、壁にしっかり固定できます。DIYで取付できるため、壁に貼り付けて施工するよりも手軽に設置することが可能です。
壁掛けタイプの姿見としては大型で、高さ1800ミリまでサイズオーダーが可能です。
-
映像に歪みはありませんか?
当社は平面性に優れた鏡、また同じように平面性に優れたボードを使用して製作していますので、歪みはほとんどありません。 -
キャスターの付いた鏡はありませんか?
キャスター付きの自立可能・移動可能な大型ミラーをお探しの人がたくさんいらっしゃいます。当店の「移動式スポーツミラー」は、39,800円~39,800円~と業界最安値!でのご奉仕!予約殺到、売り切れ必死の人気商品です。
-
パネル(裏板)の厚みは何ミリですか?
耐久性と軽さを追求した25ミリ厚のボードを使用しています。見た目もそれほど厚くなく、シンプルだと評判です。 -
割れないスタンドパネルミラーは製作できませんか?
割れないステンドパネルミラーの製作は可能です。ただし、アクリルミラーやステンレスミラーは歪みが強いため、「アルミミラー」を使用したパネルミラーをオススメします。ゴルフや野球の練習場など球を使う場所でアルミミラー仕様にされる方が沢山いらっしゃいます。
アルミミラーのパネルミラーは、お電話「0120-12-5509」にてお気軽にお問い合わせください。
「キャスター付きフィルムミラー」という軽量・割れない・歪みがない」鏡もありますので、そちらもご検討ください。
また、通常のガラスミラーのパネルミラーは割れはしますが、ボンドで接着してあるため、飛散しにくい構造になっています。価格を安く抑えたい方は通常の「パネルミラー」をオススメします。
-
高精彩ミラーのスタンドパネルミラーは製作可能ですか?
可能です。価格はお見積ください。
通常の鏡は、普通のガラス(みどり色ガラス)を使って製作されているため、映し出す映像が少し緑色が含まれた色で映ります。本当の色を映し出す鏡(完全透明のガラスを使った鏡)「高精彩ミラー」の「パネルミラー」も製作できます。
-
割れて危険ではありませんか?
金具で鏡を設置する場合とことなり、裏側に大量のミラーボンドを使用して貼り付けてあるため、割れても、右の写真のように、破片が飛び散ることが少なく、飛散防止効果があります。
ボールなどを使用し割れる危険性のある方は、「割れない鏡(アルミミラー)」を使った「パネルミラー」も製作できますので、そちらをオススメします。
-
表面反射鏡の用途は?
表面反射鏡の用途で多いのは、「万華鏡を製作する為の鏡」「一眼レフカメラの中の鏡の修理」「撮影用の備品」になります。 -
高精彩ミラーと高透過ミラーは同じですか?
はい、同じです。通常のミラーはガラスに銀引きして作られるのに対して、高精彩ミラーは「高透過ガラス」という、ガラス特有の青みを抜いたガラスに銀引きして作られますので、「高透過ミラー」とも呼ばれます。 -
ヨゴレーヌお試しサンプルの初期調整はどのようにするのですか?
ヨゴレーヌのお試しサンプルは、初期調整をしていただくことで、より防曇効果を感じていただくことができます。
鏡表面は防汚コート済ですが、梱包・開封時に人が触れることで手油・皮脂等の有機物が付着しています。これを綺麗にし、本来の効果を確認していただくための簡単な作業です。
ヨゴレーヌお試しサンプルの初期調整- まずはシャワーでミラー表面を洗い流します
- 「ミニソフトパッド」を使用して前面を10秒ほど磨きます
- 再度シャワーでミラー表面を流します
- 水の流れ(水の膜ができた状態)が確認できれば完了です!
-
ヨゴレーヌのお手入れはどのようにするのですか?
毎日のお手入れとして、付属の「ソフトパッド」を使って鏡を磨くだけでOKです。月に2回ほど、付属の「クリーナー」を使用してメンテナンスしていただくと、 効果がより長持ちします。
付属のクリーナーを使ったお手入れ方法 (目安 : 2回/月)- 「ソフトパッド」を水で濡らします
- 「クリーナー」を2滴ほどソフトパッドにたらします
- 20秒ほど鏡の表面を軽くこすります
- シャワーで洗い流せば完了です!
-
エレベーターミラーはどうやって壁に貼り付けますか?
エレベーターミラーは合わせミラーのため、厚みがあり、通常の鏡用の金物では取り付けができません、また重量がありますので、大型ミラー同様に「ミラーマット」だけではなく、「ミラーボンド」の併用で壁に貼り付けます。
-
エレベーターの中に鏡があるけど何のため?
車いすのお客様が乗り込んだ状態で、かごの中で回転ができない際、後ろ向きで出るときに後方を確認するためです。
-
エレベーター用ミラー(枠あり)の 枠の図面はありませんか?
エレベーター用ミラー(枠あり)の図面がございますので、ご覧ください。
-
配線が出ていて難しそうですが、どうやって接続するのですか
難しそうに見えますが、家庭用の100V(ボルト)コンセントで接続できますので、電気にちょっと詳しい方なら問題なくお使いいただけます。
旧タイプはコンセントの差込コネクタがついていましたが、スイッチを間に入れるケースが多く、ついていないほうが便利なため、配線のみになりました。
電気屋さんにお願いする場合は、「100V(ボルト) 37W(ワット)」とだけお伝えいただければ、すぐにご理解いただけます。
-
曇り止めヒーターの詳細を教えてください
定格消費電力 100V(ボルト) - 37W(ワット) 仕上寸法 450ミリ×350ミリ 発熱部寸法 400ミリ×300ミリ 電源ユニット部 約40ミリ×45ミリ×10ミリ -
電源ユニット部の切り抜きのサイズを教えてください
電源ユニット部のサイズは、約40ミリ×45ミリ×10ミリです。 ユニット部から電源コードが横に出ているため、余裕をみて約80ミリ×80ミリの穴を切り抜いてください。 -
コーナーを丸くする加工は出来ませんか?
可能です。「形状を選ぶ」ページで紹介していますので、ご覧ください。
-
枠付のミラーは作れますか?
姉妹店の「アンティークミラー.com」で、約500種類の枠から鏡をオーダーサイズで製作できます。
鏡の裏板にスタンド(足)を付ける「卓上ミラー加工」も可能です。 ウェディングボードをお作りになられる方には、大変人気のサービスです。 詳しくはお問合せください。
-
オンデマンドミラー印刷した鏡は屋外や水周りで使用できますか?
直接水が当たるご使用は避けてください。コーキングをしたり、窓なら、印刷面が室内側になるように使用してください。 -
鏡の表面に印刷するの?
鏡印刷では鏡の表面に印刷します。通常の鏡はガラスの向こう側に鏡面があるため、ガラスの厚み分だけ印刷が浮いて見えるようになります。 -
データの作成はどうすればいいですか?
イラストレータ形式とフォトショップ形式の2つの形式での入稿を受付しています。
※ どちらのソフトもお持ちでない場合は、まずは1度電話等でご相談ください。
-
カッティングシート(名入れシール)の貼り方は?
カッティングシートの貼り方をこちらの動画でまとめました。まっすぐ貼れるコツもご紹介しておりますので、ご覧ください。
-
文字のフォントは選べますか?
-
名入れのテンプレートのようなものはありませんか?
よくある名入れの例を記載しました。
パターン①のように「◯◯◯株式会社にしてほしい」など、お伝えいただければ幸いです。
名入れの参考デザイン
-
会社などのロゴなども名入れすることは出来ますか?
可能です。
鏡のサイズによって、背面サンドブラスト名入れ、カッティングシート共に可能ですが、複雑なカラーの場合は鏡に印刷できるオンデマンドプリンターを使って印刷することも可能です。
鏡のサイズやロゴの複雑さによって、オススメの名入れ(ロゴ入れ)方法が異なりますので、お気軽にお問い合わせください。 -
文字サイズの最小サイズは?
名入れ加工できる文字の最小サイズは基本、24pt(8.47ミリ × 8.47ミリ)となります。 これ以下の文字のサイズをご希望の場合、文字の字体やフォントの種類によって出来る場合がありますので、お問い合わせ下さい。
-
文字の色は白のみですか?
塗装のため、文字の色も自由です。
ただ複雑な色だと、電話やメールでは伝わりにくいので、原色(「青」、「赤」、「黄」、「白」、「黒」など)でご注文頂けると助かります。1番多い注文は「白」と「金」です。
-
広幅面取りのサイズのイメージが付きません
人気の高いサイズ「15ミリ幅」、「18ミリ幅」、「24ミリ幅」の3つのサイズで広幅面取りした鏡を比較撮影してみました。参考になれば幸いです。
-
どの処理を選べばいいのか迷います
ご使用方法に合わせて切断面の処理は変わってきます。ご使用方法をお伝えいただければ、オススメの処理をアドバイス致します。0120-12-5509 までお気軽にお問い合わせください。 -
型紙はどんな紙にとればいいですか?
模造紙をご使用ください。伸び縮みしない紙(新聞紙やカレンダーなど)をつなぎ合わせたものでも大丈夫です。 -
小判形の鏡を注文する場合、図面や型紙は必要ですか?
図面や型紙なしでも製作できます。図のように、正円を半分にしたような小判形の鏡は、図の(A・B・C)の寸法を頂ければ、製作可能です。
※ 「B - C = A」になっている場合に限ります。「B - C = Aになっていない場合は、型紙あるいは図面が必要です。
-
図面などを送って図面通りの形状の鏡を作れますか?
可能です。図面を送っていただければ、図面通りの形状の鏡をお作りすることが出来ます。
※ 加工できない形状もあり図面は、FAXやメールなどでお送りください。
-
取付金具とミラーマットを併用したほうがいいですか?
ミラーマットは、万が一、割れた場合にも飛散防止効果があります。また、横ズレ防止効果もありますので、併用をお勧めいたします。 -
ステンレス鏡受けを使って床から天井まで貼る場合、鏡から天井までどれくらい余裕を取ればよいでしょうか?
天井までギリギリですと施工が難しくなりますので、天井から50ミリ以上余裕をみてください。 -
取付金具を使用し、開口サイズが決まっている場合、鏡のサイズはどれくらいクリアランスを取ればよいでしょうか?
上下で金具を付けた場合、右の図のようにクリアランスをみて、鏡サイズを決めてください。お問い合わせいただければ、状況に合わせたサイズをご提案します。
-
ミラーボンドを使用して残った場合はどのように保管しますか?
ミラーボンドの先からボンドを少し出した状態で保管すると、はみ出た部分が先に固まります。1~5日ほどたってから再度使用する際は、そのはみ出た部分を引っ張って取ると、固まっていないボンドが出てきます。
それでも出ない場合は、先っぽのボンドが固まっていますので、出るところまで切ってください。1週間以上たちますと徐々にボンドが固まりますので、その際は新品をご使用ください。
-
速乾ボンドはどのような場合に必要ですか?
鏡を貼る壁の下地が、石膏ボード、ベニア板、コンパネ、コンクリートなどの場合はミラーマットだけの接着力では不十分なため、速乾ボンドを併用して取り付けることで接着力を高めて貼り付けます。また、上下金物で鏡を固定する場合も、速乾ボンドとミラーマットの併用をお勧めいたします。
詳しくは取り付け方ページをご確認ください。
-
ブチルテープや速乾ボンドはどうやって購入すればいいですか?
ステンレスミラー購入時に、取り付け用の部材が必要な場合は、一緒にご注文ください。部材のみの販売も可能です。お気軽にお問い合わせください。 電話でのご注文は0120-12-5509までお気軽にどうぞ! -
連結部分は綺麗になりますか?
工場生産時では連結部分が綺麗になるように製造してあります。壁に歪みがなければ綺麗につながりますが、壁に多少の歪みなどあった場合に、壁の影響を受けて影像に影響がでます。
-
壁側のビスは付属していますか?
L字金具とフィルムミラーを固定するビスは付属していますが、壁側のビスは壁の材質によって変える必要がありますので、付属していません。壁に合わせてご用意ください。 -
1800ミリのL字アングルを半分にして900ミリを2本取れますか?
可能です。ただ、切断時に切断歯の幅(約3〜4ミリ)の分だけ短くなりますので、約898ミリが2本になります。900ミリ幅のパネルミラーに使う場合に短くても内側に隠れますので、問題なくお使いいただけます。
-
石膏ボードに取付けられますか?
石膏ボードの場合は、補強のため石膏ボード用アンカーをお使いください。当社でも販売しております。石膏ボード用アンカーの価格について
商品画像 商品名 付属品 価格 
石膏ボード用
トグラーアンカー- アンカー × 4
- ビス × 4
- 赤ピン × 1
特別価格
400円(税別)
石膏ボード用
トグラーアンカー
× 2- アンカー × 8
- ビス × 8
- 赤ピン × 2
上下セット特別価格
780円(税別)※ビスのサイズはΦ4.5ミリ × 38ミリになります。
※耐荷重は1個当たり約50キロ。4個で約200キロになります。
※Φ8ミリのドリルが必要です。(100円ショップ等でも販売されています)石膏ボード用アンカーの価格について
商品
画像

商品名 石膏ボード用
トグラーアンカー石膏ボード用
トグラーアンカー × 2付属品 - アンカー×4
- ビス×4
- 赤ピン×1
- アンカー×8
- ビス×8
- 赤ピン×2
価格 特別価格
400円(税別)上下セット特別価格
780円(税別)※ビスのサイズはΦ4.5ミリ × 38ミリになります。
※耐荷重は1個当たり約50キロ。4個で約200キロになります。
※Φ8ミリのドリルが必要です。(100円ショップ等でも販売されています)【動画】石膏ボード用アンカーの使い方
石膏ボード用アンカーについて
-
パネルミラーや金物はいくらしますか?
パネルミラーの紹介ページに価格表を掲載していますので、そちらをご覧下さい。 -
パネルミラーってなんですか?
当社の開発した、大型鏡や鏡の連続貼りの施行を簡単にする為にパネルに鏡を貼付けた商品で、立て掛けたり、金物で固定するだけで簡単にダンススタジオ等の大型鏡の施行が出来てしまいます。パネルミラーの紹介ページに価格表を掲載していますので、そちらをご覧下さい -
パネルミラーを床から浮かせて壁に固定することはできますか?
「パネルミラー用 L型固定金具(上部)」と「パネルミラー用 L字アングル(下部)」を使って壁に床から浮かせて固定する事が可能です。
鏡の施工方法⑧【パネルミラーを床から浮かせて壁に固定】をご覧下さい。 -
ミラーマットや速乾ボンドなど販売していただけますか?
こちらで紹介した部材も販売しています。
ミラーマット(鏡専用強力両面テープ) - 4枚入り 300円(税別)
- 8枚入り 500円(税別)
速乾ボンド(170ミリリットル) 800円(税別) ミラーボンド(330ミリリットル) 1,000円(税別) ミラーボンド手絞りタイプ(330ミリリットル) 950円(税別) 防水(防カビ)シリコーン 800円(税別) コーキングガン 500円(税別) ステンレス鏡受け(片長チャンネル) オーダーサイズで販売していますので長さにより価格が異なります。 ご注文は0120-12-5509までお気軽にどうぞ!
-
お風呂や脱衣所などでもミラーマットのみで大丈夫?
ミラーマットは水には凄く弱いので、周りをシーリングするか、金物を使った取り付け方法をしてください。 -
大きな鏡はどのように施行すればいいですか?
鏡の大きさや用途により最適の取り付け方がことなります。
鏡の取り付け方(一覧ページ)をご覧頂き、お客様のご要望の大きさの鏡の取り付け方法をご覧下さい。 -
鏡の重量 の求め方を教えてください
鏡の重量計算機 から求められます。
重量を求めたい幅・高さ・厚みの数字を入力して、「計算」ボタンを押すと、鏡の重量が表示されます。
-
自分で「大きな鏡」を貼り付けできるか心配です
二人で作業を行えば、女性でも貼り付け可能です。当社の若い女性スタッフ2名に、大型ミラーを貼り付けて貰いました。その時の動画を撮影しましたので、ご心配の方は一度ご覧下さい。①梱包の開封! ②ミラーマットの貼り付け! ③貼り付け位置の確認! ④鏡を貼り付ける! -
タイルに穴を開けても割れませんか?
タイルに穴をあける場合は、コンクリート用のドリルと、振動ドリルマシンをご利用ください。 -
鏡を連続で並べて貼りたいのですがこの施行方法でいいですか?
この方法で連続に貼っても問題ありませんが、片長チャンネルという金物を使った施行方法を推奨しています。鏡の連続貼りの解説をご覧下さい。 -
ステンレス鏡受け(片長チャンネル)のサイズ(寸法)を教えて下さい?
下の図をクリック(拡大)してご確認ください。
-
連続貼りは初心者でも出来ますか?
施行方法自体は簡単ですが、鏡同士や金物と鏡を接触させ鏡を割ってしまうケースがありますので慎重さが必要です。
初心者でも簡単に大型鏡の設置や、連続貼りが出来るパネルミラーという商品を販売していますので、ご心配な方はそちらを一度ご覧下さい。
初心者でも施行簡単!パネルミラーの紹介はこちら -
ツメ金具のみで販売していただけますか?
鏡を貼る為の金具も販売しています。鏡の厚さ3ミリ用と5ミリ用があり、どちらも4個1セットで400円(税別)です。鏡注文時に一緒にご注文ください。
鏡を貼る為の金具も販売しています。鏡の厚さ3ミリ用と5ミリ用があり、どちらも4個1セットで400円(税別)です。鏡注文時に一緒にご注文ください。
↓金具のサイズは下の絵をクリックすると拡大で見れます。




↓金具のサイズは下の絵をクリックすると拡大で見れます。


-
フィルムが破れた場合、修理することは可能ですか?
可能です。有償になりますが、当社に商品を送っていただければ、フィルムを張り替えてお送りいたします。0120-12-5509までお電話ください! -
「確認用の図面」を作ってもらえますか?
鏡を連続で複数貼る場合など、つなぎ目がどこにくるかや、鏡の割り付けイメージを確認したいと思います。
当社では、図のように注文前の確認用の作図サービスも行っておりますので、安心して鏡をご注文いただけます。作図をご希望の方はお気軽にお問い合わせください。


鏡を連続で複数貼る場合など、つなぎ目がどこにくるかや、鏡の割り付けイメージを確認したいと思います。
当社では、図のように注文前の確認用の作図サービスも行っておりますので、安心して鏡をご注文いただけます。作図をご希望の方はお気軽にお問い合わせください。

-
女性ですが「大きな鏡」を持つことができますか?
当社の女性で、どのくらいの大きさの鏡が持てるか実験してみました。 左下の写真の鏡(約15キロ)ぐらいの鏡でしたら一人でも持てるようです。2人で持った場合、右下の写真のような30キロぐらいの鏡まで持てます。 男性の場合は1人で25キロぐらい、2人で50キロぐらいまでは持てるようです。
-
保証期間を過ぎるとどうなりますか?
保証期間を過ぎた場合には、運送会社を含めた責任の所在の特定が困難となり、返品・交換対応しかねます。商品到着後、出来る限り早く商品をご確認いただけることをお願い申し上げます。 -
いろいろ鏡の種類があって、どれを選べば良いか分かりません
使用用途やご予算をお伝えいただければ、お客様にピッタリの全身鏡をお選びいたします。お気軽にご相談ください! -
鏡の交換に使う用品の販売もしていますか?
販売しています。鏡の交換ですと、次の道具が必要になります。鏡と一緒に購入が可能です。 必要な部材が解らない場合は「0120-12-5509」までお気軽にお問合せください。
販売しています。鏡の交換ですと、次の道具が必要になります。鏡と一緒に購入が可能です。 必要な部材が解らない場合は「0120-12-5509」までお気軽にお問合せください。
-
ツメ金具も交換したいのですが販売していますか?
販売しています。
ツメ金具
4個入(ネジ付き)400円
400円ステンレス製で強度の高い鏡専用の金具です。付属のビスもステンレス製で錆びにくく長持ちします。
ツメ金具を交換する場合の注意点
通常、ユニットバスは壁がFRP(強化プラスチック)で出来ているため壁が薄く、ビスが固定できないため、壁の裏側に固定するナットのようなものが付いています。 もともと付いているツメ金具を外すと、このナットが落ちてしまう為、ビスを固定することが出来ません。ただ、アンカーを取り付けることで、ビスを固定できるようになります。
※すべてのユニットバスの鏡の取り付け方が同じとは限りません。
アンカーの価格について
商品画像 商品名 付属品 価格 
スリムアンカー アンカー×4
赤ピン×1特別価格
400円
400円※ビスはツメ金具に付属している物が使用できます。
※耐荷重は1個当たり約50キロ。4個で約200キロになります。
※8ミリのドリルが必要です。(100円ショップ等でも販売されています)商品
画像
商品名 スリムアンカー 付属品 アンカー×4
赤ピン×1価格 特別価格
400円
400円※ビスはツメ金具に付属している物が使用できます。
※耐荷重は1個当たり約50キロ。4個で約200キロになります。
※8ミリのドリルが必要です。(100円ショップ等でも販売されています)アンカーの使い方について
【動画】アンカーの使い方
※石膏ボード用アンカーの取り付け方とありますが、壁厚の違いだけで使い方は同じです。
※ユニットバスの壁厚(板厚)は大体2ミリ厚の為、2ミリ厚に対応したアンカーが必要です。ツメ金具を新しいものと交換されたい方は、スタッフまでお尋ねください。
-
浴室鏡の交換に来てもらえませんか?
可能です。すぐにお見積もりできますので、お気軽にお問い合わせください。一部、交換に行けない地域もございます。ご了承ください。 -
PPバンドってなんですか?
よく商品の梱包などで使われている、ポリプロピレン製の紐です。とても硬く、鏡を貼り付けているミラーマットやミラーボンドの切断に向いています。
PPバンドは当社に沢山あります。鏡を交換される方で、必要な方は鏡と一緒にお送りしますので、お気軽にお声掛けください。
-
PPバンドやピアノ線がないのですが、購入できますか?
もちろん、ご購入いただけます。
下記の価格にて販売しておりますので、ご希望の方はカートやお電話・お見積りフォームからご注文ください。ピアノ線 1.5m 200円(税込220円) ピアノ線 2.0m 300円(税込330円) -
ピアノ線やPPバンドでやってみましたが硬くて剥がせません
鏡の裏側にミラーマットでなく、ミラーボンドとよばれる専用のボンドで固定されている場合、硬くてPPバンドではカットできずに剥がせない場合があります。 ピアノ線ならボンドもカットできる場合が多いですが、どうしても剥がせない場合は、鏡を割って取り外す方法もございます。
-
どのような形式で図を送ればいいですか?
「Illustrator」で作成されたデータが好ましいですが、写真や手書きの図からでも製作可能です。
イラストを送っていただくメールアドレスは、「shop@ookabe-glass.com」になります。
-
参考価格を教えてください。(どのくらい安いの?)
写真のような鏡を本物のステンドガラスで作ると10万円以上しますが、 当店の場合、400ミリ×1200ミリ 53,005円53,005円になります。
お客様オリジナルのデザインで、お作りする場合は別途デザイン料がかかります。デザイン料は、お客様から頂いたデザインの複雑さや色の個数によって変わります。 左の鏡の場合は、15,000円15,000円になります。
当社オリジナルのデザインでお作りする場合や、同じデザインでの2枚目以降はデザイン料は必要ありませんのでご安心ください。
通常のステンドガラスミラーの半額ぐらいで購入が可能です。
-
枠を付けることはできますか?(枠を付けるといくら?)
ステンドグラスミラーに枠を付けたい方は、枠付けが可能です。
枠の種類は約500種類!当社の運営する「アンティークミラー.com」の枠よりお選び頂けます。
枠の価格は、枠の種類によってことなります。右のような枠の場合は
枠あり:736ミリ×536ミリ 70,139円(デザイン費別途)
枠なし:648ミリ×448ミリ 38,888円(デザイン費別途)になります。
お気軽にお問い合わせください。 -
納期はどのくらい掛かりますか?
最終図案 → 製作開始してから通常約10営業日になります。
※ 混雑時は3週間程度かかる場合がございますので、予めご確認下さい。
-
ステンドグラス風ミラーの表面はどんな感じ?
-
レトロ感を高めた雰囲気のあるステンドミラーに出来ませんか?
ロートにすることで、レトロ感の高い雰囲気のあるステンドグラスミラーに仕上がります。
色は写真の6種類からお選び頂けます。製造方法の都合上、1枚に対する面積に限界があります。半分程度の面積でお使い頂けるようなデザインで使っていただくとありがたいですが、どうしてもという方はお気軽にお問い合わせください。
アイスフロートのサンプルも限りが有りますが、ございます。ご希望の方はサンプル請求の際、一緒に請求希望をお伝えください。
電話でのサンプル請求も可能です。「0120-12-5509」までお気軽にお問い合わせください。
-
円形(丸形)のステンドミラーは作れますか?
可能です。右の写真は円形ステンドグラスの製作例ですが、円形(丸形)鏡のステンドミラーも製作可能です。
丸いステンドミラーも「0120-12-5509」まで、お気軽にお問い合わせください!
-
描線を黒以外で作ることはできますか?
になっています。右の写真のような、ゴールド・シルバー・ブロンズの描線にも変更可能です。
変更の料金は現在、無料にさせていただいております。「0120-12-5509」までお気軽にお問い合わせください。
-
取り付け方を教えて下さい
ステンドミラーの取付け方も通常の鏡と同じです。
オススメはミラーマットにミラーボンドを併用する方法(鏡の施工方法④)。金具を使わないため、施行方法も比較的簡単で見た目も金具が無い分、キレイです。ミラーボンドの粘着力は強力で約36キロの重量にも耐えることが出来ます。
-
ガラスミラー(ガラス製の鏡)はどのくらいの衝撃で割れますか?
ガラス製の鏡は割れやすいと思われている方が多いと思いますが、壁に貼ったガラスの鏡は意外に強く、人や物がぶつかったぐらいでは簡単には割れません。野球ボールを鏡に投げる実験の動画を撮影してみましたので、ご心配の方は一度ご覧ください。
-
どんな鏡を修理できますか?
当社に送れるサイズの鏡であれば、一度お問い合わせください。スマートフォンなどから写真を送っていただければ、すぐに修理が可能か判断し、お見積もり致します。 -
枠無しの鏡は修理できますか?
枠無しの鏡の場合、修理するというより新しい鏡を購入された方がお安くなります。 -
修理価格はどのくらいになりますか?
鏡の大きさや割れた鏡を取り外す難易度にもよりますが、修理工賃3,500円~3,500円~になります。鏡代は別途掛かりますので、四角い小さい手鏡ですと、4000円ぐらいになります。 -
鏡はどのように送ればいいですか?
プチプチやタオルなどの布に巻いて、段ボールの箱に入れてお送りください。新聞紙等をくしゃくしゃにして中身が動かないようにクッションを入れていただくと安全です。
-
壁に貼ってある鏡の修理や交換に来てもらえませんか?
壁に貼ってある鏡が割れた場合、鏡を交換する必要があります。
当店では「鏡の取り付け・交換施工の出張サービス」を行っております。都道府県・市区町村別にサービス内容や価格をまとめておりますので、ご覧ください。
-
布や皮の枠に挟まれているタイプの手鏡の見え幅について
手鏡の修理の際、割れた鏡を取り出した後、「鏡が見えていた部分の枠の大きさ」に合わせて鏡をカットし貼り付けます。 この時、枠に入るようにカットすることで元の鏡よりも少し小さくなり、隙間が見えてしまいます。 手鏡の修理の際は、少々の隙間ができてしまう点、ご了承ください。
-
「デザインガラスサンプル・アソートボックス」はどう注文すればいいですか?
「デザインガラスサンプル・アソートボックス」は数に限りがございますので、お電話でご注文ください。
-
個人事業主でも登録は可能ですか?
-
ガラス店(サッシ店)でも登録は可能ですか?
もちろん登録可能です。
いろいろな種類のデザインガラスを元板購入ではなく原寸(希望のサイズ)購入が可能ですので、多くのガラス店やサッシ店の方にご利用いただいております。必要な分のみ購入できると、大変お喜びいただいております。
-
領収書が同封されていなかったのですが、頂けませんか?
もちろんお出しします。下部のフォームに「注文番号と領収書必要」とご記入いただき送信してください。PDFか郵送をお選びできます。
※ 郵送をご希望の場合、お届け先がガラスのお届け先と違う場合は領収書の送り先もご記入ください。「代金引換」での発送の場合、代金引換の送り状が領収書の代わりになりますので、ご了承ください。
-
出荷証明書を出してもらう方法を教えて。
出荷証明書を発行できます。お電話(0120-12-5509)またはメールにて、出荷証明書が必要な旨をお伝えください。
-
商品を取りに行くので、送料を安くできますか?
当社まで直接商品を引き取りにお越しいただいた場合、送料はいただきません。当社「OOKABE GLASS株式会社」、福井県福井市に所在しておりますので、お近くのお客様はご利用ください。
※ ご来社の時間を事前にご連絡ください。
-
壁に丸い鏡を貼りたいのですが、どうすればいいですか?
動画や写真で、金具での取り付け方法や壁への貼付け方を解説しております。ご覧ください。
-
鏡1枚でも送ってもらえますか?
もちろんでございます。当社では、個人のお客様、法人のお客様に関わらず、鏡1枚から全国発送しております。
-
短納期希望なのですが…
可能な限りご希望に添えるよう、全力で対応いたします。鏡のサイズや種類により、すぐに出荷できるものから出荷までお時間のかかるものまでございます。納期の短縮をご希望される場合、1日でも早くお届けできるよう全力で対応いたしますので、お気軽にご相談ください。
-
頼んでいる施工業者と直接やりとりして欲しいのですが…
当社と施工業者や大工さんの直接やりとりが可能です。加工方法・サイズ・厚みなどがわからないなどの場合も直接打ち合わせをするので、安心してお任せください。
-
鏡の貼り付けの施工に来ていただけませんか?
ご自身での施工が難しい場合などは、鏡の施工や交換・取付・採寸に出張で行くことができます。ただいま全国に出張エリアを拡大中ですが、一部出張出来ない地域もございます。
まずはお気軽にお電話「0120-12-5509」までお電話ください。お見積もりや出張が可能な地域かお伝えできます。
-
鏡を貼るための金具はありますか? 金具のサイズは?
鏡を貼る為の金具も販売しています。鏡の厚さ3ミリ用と5ミリ用があり、どちらも4個1セットで400円400円です。鏡注文時に一緒にご注文ください。
金具を使った鏡の取り付け方の説明はこちら↓ 金具のサイズは下の絵をクリックすると拡大で見れます。
-
「コーキングガン」の使い方が分かりません。どうすればいいですか?
動画で簡単な使い方を説明していますので、ご覧ください。
-
壁に貼りつけてある鏡を交換したいのですが、どうすればいいですか?
鏡を交換する際は、鏡を外す必要があるのですが、 一般的には下の動画の、ピアノ線やPPバンド(梱包結束バンド)等でミラーマットを切断する「①鏡を割らずに交換する方法」を試してみて、 外せない場合はガラスカッターで鏡を粉々にして剥がす「②鏡を割って交換する方法」で鏡を交換するケースが殆どです。
- ※ PPバンド(梱包の結束バンド)はご希望であれば無料で差し上げます。
- ※ ガラスカッターは、ガラスのホームセンター「ギヤマン」、または当店で購入できます。
鏡の交換方法の動画
迷った方は
「② 鏡を割って交換する方法」を選べば間違いなく外せますが、どちらの方法で交換するか迷った方は、スタッフまでお気軽にお問い合わせください。 -
注文可能な鏡の枚数を教えて。
当店では、鏡1枚から注文が可能です。100枚以上の大量注文も受け付けています。 -
サイズを間違えて注文してしまいました
オーダー品のサイズを間違えて注文してしまった場合、まずはすぐにご連絡ください。製作(切断)開始前ならストップすることができますが、製作(切断)を開始してしまった場合は、ストップすることができません。
再製作の場合は無償ではありませんが、できるだけ原価ギリギリの価格でご協力させていただきます。
-
飛散防止フィルムを貼っていないミラーはどのくらい飛散しますか?
鏡の貼り付け方として一般的な「ミラーボンド」と「ミラーマット」を使って鏡を貼った場合、飛散防止フィルムなしだと、写真のように若干飛散します。ですが、粉々になって飛び散ることはありません。
-
どんな加工やどんな形まで出来るのですか?
当社で出来ることは「鏡(ミラー)の加工技術すべて」と言っても過言ではありませんので、まずは「こんな形に出来ない?」「こんな鏡に出来ない?」などご連絡ください。 -
万が一、商品到着後ひび割れなどあった場合返品できますか?
もちろん当社の責任ですので、無償で交換させていただきます。交換までの流れをご説明いたしますので、ひび割れ等ありましたらご連絡ください。
-
鏡(ミラー)を裁断のみで注文した場合、手が切れないように面取りはしてありますか?
鏡(ミラー)を裁断のみ(無料)で注文した場合、手が切れない面取りはしてありません。
面取りをご希望の方は、ご希望の処理をお選びください。
当店では、切断面を4ランクに分けています。用途やご予算、ご希望に合わせてご指定いただけます。
切りっぱなし
糸面取り
磨き加工(アラズリ)
磨き加工(ミガキ)
-
サンプルはありますか?
鏡のカットサンプルまたはレンタルサンプルをご用意しております。また、一部サンプルがご用意できない商品がございますので、ご希望の方はお問い合わせください。カットサンプルは7センチ × 10センチ程度の大きさのものになります。
-
枠の付いた鏡を買えるサイトを教えて。
枠のついた鏡は、アンティークミラー.comのページから購入いただけます。 -
返品・交換
返品・交換についての条件を教えてください。
商品到着後ひび割れなどあった場合返品できますか?
もちろん当社の責任ですので、無償で交換させていただきます。交換までの流れをご説明いたしますので、ひび割れ等ありましたらご連絡下さい。
電話番号:0120-12-5509
営業日時:月曜~土曜日 9:00~18:00 -
どのようなお支払方法がありますか?
どのようなお支払方法がありますか?
下記のお支払方法がご利用いただけます。
- 代金引換
- 銀行振込(前払い)
- 請求書後払い
- クレジットカード決済
詳しくは下記のページをご覧ください。
注文後にお支払い方法を変更できますか?
状況により変更できる場合と出来ない場合がございます。すぐに確認を致しますので、ご連絡ください。
電話番号:0120-12-5509
営業日時:月曜~土曜日 9:00~18:00 -
配送料について
配送料について教えてください。
下記のページをご覧ください。
-
領収書の発行について
領収書は発行できますか?
発行できます。
詳細は下記のページをご覧ください。 -
鏡を貼るためのツメ金具のサイズは?


- 鏡の交換で、既存の穴が隠れる鏡のサイズ…
- ミラテクト(鏡用簡易腐食防止塗料)は浴室…
- 壁に貼られている既存の鏡を、移転先に移…
- 届いた「アンティークミラー」に線傷や浅…
- 店舗にパネルミラーを4枚連結して取り付け…
- 「壁ミラー つっぱりタイプ」は組み立てが…
- 鏡のシールフィルムを支給材に貼り付け加…
- 鏡のシールフィルムに使用しているポリエ…
- 鏡のシールフィルムはアルミ蒸着ですか?
- リビングの壁に600ミリ×600ミリ 3.8キロの…
- 「防湿ミラーHG(ハイグレード)」は国産品…
- 「シールミラー」の裏面に目盛は入ってい…
- 「壁ミラー つっぱりタイプ」の重量は?
- 鏡の厚みによって耐久性は変わりますか?
- 「インテリアミラーのA-172」を陶器タイル…
- 「壁ミラー つっぱりタイプ」はどんな梱包…
- パネルミラーのゴム脚の高さは何cmですか?
- 直射日光がパネルミラーの鏡の裏面に当た…
- 鏡をカットできる最大のサイズを教えてく…
- 中性洗剤をかけた上から「シールミラー」…
- 「シールミラー」は透けますか?
- パネルミラー用のL字固定金具の高さ(壁に…
- ステンレス製の鏡のスクラッチキズの補修(…
- 「シールミラー」はカッターで切れますか?
- 「壁ミラーつっぱりタイプ」は床に傷をつ…
- 「ステンレスミラー」を浴室に貼っても大…
- 「表面反射鏡」よりも平坦で薄くて全面反…
- 「壁ミラー つっぱりタイプ」を連貼りして…
- 「2つ折り鏡止め」とはどのような金具でし…
- 「インテリアミラー」をオーダーサイズで…
- 「インテリアミラー A-172」を横向きに設…
- 枠の中にある鏡が割れたのですが、修理で…
- 立て鏡の修理期間を教えてください
- 軽くて、割れた際に簡単に交換できる姿見…
- 「アルミミラー」と「シールミラー」のサ…
- 鏡の修理と交換はどちらが安く済みますか?
- 鏡の試験成績報告書をPDFで送っていただけ…
- 「直径7.5センチの鏡」の修理は可能ですか?
- 割れない鏡をエレベーター内に取り付けた…
- 「樹脂ミラー」を切ったら、切断面がギザ…
- リビングの壁に取り付ける鏡に「シケ」が…
- 賃貸物件の壁に貼る鏡は、どんなものがあ…
- 「フィルムミラー」の枠は全て同じ仕様で…
- フィルムミラーのフィルムを貼り替えても…
- 「樹脂ミラー」はハサミやカッターで簡単…
- パネルミラーの鏡の厚さが変わると、見た…
- 「樹脂ミラー (プラスチックミラー)」は通…
- 移動式スポーツミラーを複数保管するには…
- ノンフレームミラーはありますか?
- トレーニング用の鏡が欲しいです。また設…
- ダンスミラーの中古はありますか?
- 鏡の枠部分の修理もしてもらえますか?
- 施工する鏡の枚数を減らせば、「施工料金…
- 届いた段ボールに記載のある重量は商品の…
- 楕円形や円形のフィルムミラーは製作でき…
- アクリルブロックの製作はできますか?
- アクリルの接着加工はできますか?
- すでに購入済みの鏡も取り付けてもらえま…
- 鏡を交換した場合、今ある鏡は処分しても…
- 鏡の種類で迷っているのですが、見積はで…
- 浴室鏡を交換してほしいのですが、付いて…
- 発行された領収書確認時に「ポップアップ…
- 施工計画書に必要な書類を用意できますか?
- 会員情報のメールアドレスを変更できます…
- 大型フィルムミラー(連結タイプ)の連結補…
- スタンドパネルミラーはオーダーサイズで…
- 薄く仕上げたいのですが、取付にミラーマ…
- 薄く仕上げたいのですが、取付にミラーマ…
- 薄く仕上げたいのですが、取付にミラーマ…
- 届いた商品を自分で割ってしまった場合の…
- 商品のサイズを間違えて指定していた場合…
- 届いた商品が受け取り時に割れていた場合…
- 返品・返金の手続きを教えて。
- 商品の返品・交換・返金対応をしてもらえ…
- 返金・返品・交換ができるケースや、保証…
- インボイス制度に対応していますか?
- インボイス対応の領収書は発行できますか?
- 納品書を送ってもらうための手続きを教え…
- 代金引換で支払った場合、領収書は発行で…
- 領収書発行の手続きを教えて。
- 到着時間の指定をする場合、指定できる時…
- 到着日は、注文日の何日後から指定できる…
- 到着時間の指定ができないケースを教えて。
- 希望商品の最短納期が知りたい。
- 注文した商品の到着日が知りたい。
- 送料について
- カート注文後、商品が発送されるまでの時…
- 荷揚げ(商品を搬入口から指定の部屋や場…
- 海外発送はできますか?
- 銀行振込(前払い)をする場合、振込先が書…
- 支払い手数料はいくらかかるのか教えて。
- 利用できる支払方法を教えて。
- カート注文後、注文確認メールが届かない…
- カート注文後、注文確認メールが届くまで…
- 施工業者と直接やりとりしてもらう方法を…
- 鏡の施工を依頼する方法を教えて。
- DIYで壁に貼りつけてある鏡を交換する方法…
- DIYで壁に鏡を貼る方法を教えて。
- 鏡の取り付け金具(ツメ金具)のサイズを教…
- コーキングガンの使い方を教えて。
- 鏡の取り付けに必要な部材を教えて。
- 特注品の加工・製作が可能か知りたい。
- 鏡の修理を依頼する方法を教えて。
- ログイン用のメールアドレスもパスワード…
- ログイン用のパスワードを忘れてしまった…
- パスワードを再設定したいが、再設定用の…
- 会員登録をしたのに割引されていない場合…
- 会員登録前に注文してしまい会員割引が適…
- 割引が適用される基準を教えて。
- 使用用途に最適な鏡の種類を知りたい。
- 配送のみと施工を含む場合で鏡の金額が違…
- 割れないマグネットミラー(アルミミラー)…
- 拡大鏡の倍率を5倍程度にしたものはありま…
- フィルムミラーのゴム脚は、縦・横 両方に…
- フィルムミラーの枠なしを並べて設置する…
- パネルミラーのゴム脚の高さは?サイトに…
- アンティークミラーはアーチ状にカットで…
- 鏡の裏の色は選べますか?
- 色ミラーブラックに銀抜き加工はできます…
- エレベーター用ミラーは枠が付いています…
- エレベーター用ミラーの枠は鏡面・ヘアラ…
- 壁掛けミラー(部材セット)の取付部材のみ…
- 鏡の大きさによって取付部材は変わります…
- アクリルミラーやアルミミラーをカットす…
- 取付部材のみを後から購入することはでき…
- 浴室用鏡に撥水のガラスコーティングをし…
- 金物なしで鏡の施工は可能でしょうか?
- 移動式スポーツミラーは、ブラック色も用…
- 卓上ミラーはありますか?
- パネルミラーの厚みはどれくらいですか?
- アルミミラーの切断面はどのようになって…
- 壁掛けミラーの製作最小サイズは?
- OKミラーの枠の厚み・壁から飛び出るサイ…
- ガラスの断面を磨きで直角にすることは可…
- 鏡にステンレスやアルミの枠をつけられま…
- 規格品への加工をお願いすることはできま…
- アクリルミラーは屋外に使えますか?
- ガラスミラー以外の素材に広幅面取りはで…
- 鏡を天井に貼れますか?
- ガラスミラーの裏面の色は何色ですか?
- 表面反射鏡の反射率はどれくらいですか?
- 片長チャンネルがなくても取り付けできま…
- 鏡の1平米当たりの単価を教えてください
- 鏡の底辺を床につけて壁に貼ることはでき…
- 片長チャンネルとツメ金具はどのような時…
- 注文したのにマイページの購入履歴があり…
- 領収書DLボタンがありません。
- 会員登録前にカート注文してしまった。購…
- ステンレス鏡受け(片長チャンネル)のネジ…
- 防湿ミラーとガラスミラーの見え方は変わ…
- 防湿ミラーに穴あけ加工は出来ますか?
- 鏡の飛散防止フィルムは表に貼りますか、…
- 鏡交換の際、上下のチャンネルも一緒に交…
- フィルムミラーとシールミラーの違いは?
- ツメ金具 4個入(ネジ付き)のネジサイズは?
- 湿気や結露が多い場所に鏡を設置する場合…
- パネルミラーとガラスミラーの違いは?
- 金具なしで取り付けて落下しないか不安です
- OKミラーは防湿加工可能ですか
- シューズボックスの施工に下地は必要です…
- 鏡を連貼りする場合ツメ金具でも問題ない…
- パネルミラーに使用されている鏡の種類は
- ガラスミラーの厚み公差を教えてほしい
- 飛散防止フィルムが貼ってある鏡と貼って…
- おすすめの広幅面取りの幅を教えてください
- 石膏ボードにツメ金具は取付できますか
- 注文したいのですがどうすればいいですか?
- 商品の見積りをする方法を教えて。
- 床用ミラー・カラー床用ミラーは切断面を…
- 床用ミラー・カラー床用ミラーは屋外でも…
- 「片長チャンネル」「パネルミラー用 L字…
- 床置きタイプで、全身映るサイズの姿見が…
- ピタミラーとマグネットミラーとの違いは?
- フィルムの効果が感じられなくなった場合…
- 玄関やウォークインクローゼット等の全身…
- 襖に鏡を貼り付けることはできますか?
- マグネットはサビますか?
- 鏡の厚みによって耐久性は変わりますか?
- カラー合わせミラーのサンプルはあります…
- ハングマンはどのくらいの大きさまで吊り…
- 申請する書類として見積書が必要です。作…
- アンティークミラーの広幅面取りの加工料…
- アンティークミラーに印刷はできますか?
- アンティークミラーの枠だけの購入は可能…
- 鏡にエッチングなど、模様を装飾すること…
- アンティークミラーの大きなサンプルはあ…
- アンティークミラーの枠の「幅」「厚み」…
- アンティークミラーを洗面所に取り付けた…
- アンティークミラーは、どのような梱包で…
- 「鏡の枠の種類を選ぶ」ところで出てくる…
- 枠のない鏡がほしいのですが、取り扱いは…
- 壁に鏡を貼りたいのですが、大きいもので…
- アンティークミラーの鏡を「高透過ミラー…
- アンティークミラーを自分で壁に取り付け…
- アンティークミラーの鏡の裏面はどのよう…
- アンティークミラーのどの取付け方法のも…
- 枠付きミラーに使用されている鏡の厚みは…
- 円形や楕円形のアンティークミラーは作れ…
- 鏡の取り付け(設置)に来てくれませんか?
- 商品に付属されている金物や、吊りヒモを…
- ハングマンの詳細なサイズ(寸法)を教えて…
- ハングマンの付属のビスの仕様について教…
- ハングマンの穴の数が、HP記載の物より多…
- アンティークミラーの取付金具の取り付け…
- アンティークミラーの裏面の見え方を確認…
- 届いた「アンティークミラー」が希望サイ…
- 施工直後、ガラスとフィルムの間に水泡や…
- 規格サイズミラーの施工方法について教え…
- 賃貸物件の壁に貼る鏡は、どんなものがあ…
- 賃貸物件の壁に穴をあけずに鏡を取り付け…
- 3kgほどの小型の鏡をミラーマットと速乾ボ…
- ダンス練習用に「パネルミラー」を検討し…
- チアダンス練習時に、移動ができて、割れ…
- ダンスミラーの中古はありますか?
- 自宅のダンス練習用鏡で安さ重視の場合は…
- 学校で使うダンス練習ミラーを検討してい…
- 移動式スポーツミラーに保護フィルム(飛散…
- 鏡を貼りたいところに、コンセントやスイ…
- 施工まで行った場合の見積額を知りたいで…
- 必要な鏡の大きさがわかりません。鏡を貼…
- 鏡のオンデマンドフルカラー印刷は、枠の…
- 高精彩ミラーや防湿ミラー等、違う種類の…
- オンデマンドフルカラー印刷した鏡は、屋…
- 鏡に映り込む、印刷面の裏側はどうなりま…
- 鏡への印刷サンプルを見せてもらうことは…
- 鏡の印刷の入稿データはどのように作れば…
- 他の鏡の印刷屋さんよりもなぜ安く印刷で…
- 鏡に印刷はできますか?
- 名入れ価格はおいくらですか?
- 名入れ加工の文字サイズの最小サイズは?
- 名入れ加工の文字の色は白のみですか?
- アンティークミラーの六角形ミラーの直貼…
- 高透過仕様のアンティークミラーに広幅面…
- アンティークミラーの高透過仕様の八角形…
- 特殊な八角形の注文の際は、鏡のどこのサ…
- アンティークミラーの八角形ミラーの直貼…
- フィルムミラー(スリムタイプ)の映りは?
- ハングマンは特大で68kgまで耐荷重がある…
- 鏡の横幅が1000ミリを超える場合は、ハン…
- ハングマンで鏡を壁に取り付けた場合、壁…
- ハングマンはどのくらいの大きさまで吊り…
- 枠だけの販売は可能ですか?
- お風呂や脱衣所にも同じ方法で鏡を貼れま…
- 3kgよりも重い鏡やサイズの大きな鏡は、ど…
- ミラーマット・速乾ボンド・マスキングテ…
- キャスターの車輪の直径を教えてください
- 壁ミラー 縦長スリムタイプの重量を教えて…
- 円形の鏡の取り付け方法を教えてください
- 防湿ミラーの施工方法について教えてくだ…
- 大型ミラーの施工方法について教えてくだ…
- 顔・上半身を映す姿見ミラーの施工方法に…
- クリアミラーの施工方法について教えてく…
- 「リフェクスミラー」という商品を見かけ…
- 自宅でフィルムミラーを使いたいのですが…
- 床から浮かせて取り付けることはできます…
- 通常のステンレスとどこが違うのですか?
- ステンレスミラーの貼付け方を教えてくだ…
- 取り付ける為の「ビス穴」を開ける事は出…
- 壁掛けミラーを取り付けると、どのくらい…
- つっぱりミラーのつっぱり棒の太さはどの…
- 鏡の厚みは、なぜ5ミリなのですか?
- 回収料はどのように支払いますか?
- 鏡を注文せず、回収だけしてほしいのです…
- 樹脂ミラーやマジックミラーなど、普通ミ…
- 全身映る鏡のサイズは?
- 「確認用の図面」を作ってもらえますか?
- フィルムが破れた場合、修理することは可…
- 大量にほしいのですが少しお安くなりませ…
- 送料や梱包費はおいくらですか?
- フィルムミラーに名入れ加工はできますか?
- フィルムミラーにキャスターを付けること…
- 自立するフィルムミラーはありませんか?
- つっぱりミラーの設置に来てくれませんか?
- 柱が出っ張っている部分にも鏡は取り付け…
- 2枚以上を並べて貼るときの調整方法を教え…
- 鏡を横長に使用する際、長辺の下部へゴム…
- 室内や2階以上の部屋まで搬入はできますか?
- 「転倒保証」ってなんですか?
- ガラスミラー(ガラス製の鏡)はどのくらい…
- 屋外で使える割れない鏡はありますか?
- 防湿ミラーや高精細ミラー等、種類の違う…
- 鏡の施工出張サービスは、全国どこでも来…
- 「パネルミラー用 L字アングル」は、穴す…
- 「ブロンズ」から一気に「ゴールド」「プ…
- 自分の会員ランクをどこで確認できますか?
- 購入回数・購入金額の累計は何年間有効で…
- 本体を壁面に取り付ける際の採寸を教えて…
- ACアダプターのサイズを教えてください。
- 消費電力は何Wですか?
- 鏡に曇り止めフィルムを貼って送っていた…
- フィルムを貼るときに使う「石鹸水」はど…
- 曇り止めフィルムはなぜ曇らないのですか?
- 曇り止めフィルム(浴室タイプ)を浴室以外…
- 鏡が「新品」でもミラークリーナーで磨く…
- かがみ美人はどのような用途がありますか?
- かがみ美人(浴室用)はなぜ曇らないのです…
- かがみ美人(洗面所用)はなぜ曇らないので…
- かがみ美人のセット内容を教えて下さい
- かがみ美人の各溶剤の成分は何ですか?
- かがみ美人(浴室用)は洗面所でも使えます…
- 食品工場専用ミラーの清掃方法を教えて下…
- 鏡はどのぐらい曲がっていますか?
- 表面反射鏡の用途は?
- マジックミラーの透過率は?
- マジックミラーの透過率の指定は出来ます…
- 透過率による見え方の違いはありますか?
- ミラーサイネージに最適なマジックミラー…
- プロンプターに最適なマジックミラーの透…
- ガラス製とアクリル製の違いは?
- マジックミラーの光学的性能は?
- マジックミラーに表と裏の違いはあります…
- マジックミラーの仕組みは?
- 樹脂カラーミラーは映像は綺麗に映ります…
- 樹脂カラーミラーはどうやって貼ればいい…
- フロストミラーに広幅面取り加工はできま…
- 広幅面取りしたフロストミラーはどのよう…
- サンプルを見たいのですが、サンプルはあ…
- 塗装カラーミラーという商品はありますか?
- カラー合わせミラーの「壁への貼付け方」…
- 枠付きの色ミラーは作れませんか?
- ピタミラーはどのような映りですか?
- ネオジウム磁石とはどのような磁石ですか?
- ピタミラーの化粧枠の色は?
- 3ミリや5ミリなどの厚みのある樹脂ミラー…
- 樹脂ミラーは映像は綺麗に映りますか?
- 樹脂ミラーはどうやって貼ればいいですか?
- 円形にカットしたいのですが、どうすれば…
- ゴムヘラは売っていますか?
- シールミラーの剥がし方は?
- 映像に歪みはないのですか?
- まっすぐな壁に装飾用シールミラーを貼っ…
- 装飾用シールミラーは屋外や浴室などで使…
- 石鹸水は水にどのくらい洗剤をいれればい…
- ベニア板のザラザラした面に装飾用シール…
- フィルムミラーは割れませんか?
- 寸法の詳細を教えて下さい
- 枠なしのフィルムミラーも作れますか?
- フィルムミラーの「枠あり」、「枠なし」…
- フィルムミラー1枚を「L字金具」で固定し…
- フィルムミラーに「L字金具」用の穴はあけ…
- データはどのような形式で送ればいいです…
- 自立するフィルムミラーはありませんか?
- キャスター付きのフィルムミラーはありま…
- フィルムミラーに名入れ加工はできますか?
- フィルムミラーの付属品はどのような物で…
- アクリルミラーのサンプルはありませんか?
- アクリルミラーは屋外で使用できますか?
- アルミミラーに穴開け等の加工は出来ます…
- アルミミラーを屋外で使用できますか?
- アルミミラーの貼付け方(取り付け方)を教…
- アルミミラーの清掃方法を教えて下さい
- アルミミラーの小口(側面)を隠すものはな…
- 2ミリや3ミリの厚みのあるステンレスミラ…
- 寸法の詳細を教えて下さい
- 名入れ加工はできますか?
- フィルムが破れた場合、修理することは可…
- 両面をフィルムミラーにすることは出来ま…
- 全身映りますか?
- 映像に「歪み」はありませんか?
- 壁近くに並べた場合、どのくらいの隙間が…
- 連結させた状態で移動出来ますか?
- 部位ごとの詳しい寸法を教えてください
- 移動式スポーツミラーの重さはどのくらい…
- 緩衝材はついていますか?
- 自分で簡単に組み立てられるか心配。説明…
- 移動式スポーツミラーを組み立てに来てく…
- 商品の送料や梱包費はおいくらですか?
- 鏡が割れたときは破片が飛び散りますか?…
- 万が一鏡が割れたら、修理はできますか?
- 割れない移動式スポーツミラーは製作でき…
- 移動式スポーツミラーの両面に鏡を貼るこ…
- 下が畳でも取り付けできますか
- 隙間なく並べることはできますか
- 取り付け時の注意点はありますか
- これまでつっぱり式で倒れたという報告は…
- 壁ミラー の詳しい寸法を教えて下さい
- 壁ミラーつっぱりタイプの重量を教えて下…
- 壁ミラーの厚みを教えて下さい
- 床から天井まで突っ張りした全体イメージ…
- 間仕切りとして使用できますか?裏面はど…
- 女性でも取り付けできますか?
- 身長175センチですが、全身鏡に入りますか?
- もっと簡単に移動ができる鏡はありません…
- 壁を傷つけずにパネルミラーをしっかり固…
- パネルミラーの設置に来てくれませんか?
- 割れて危険ではありませんか?
- パネルミラーの重さはどのくらいですか?
- パネルミラーを自立させる事はできません…
- 映像に歪みはありませんか?
- ブラックタイプの「エッジ部分」の色はど…
- 割れないパネルミラーは製作できませんか?
- 高精彩ミラーのパネルミラーは製作可能で…
- TOTO や INAX の耐食鏡の取り扱いはありま…
- 浴室用鏡は曇り止め鏡ではないの?
- 規格サイズ以外のオーダーサイズで製作で…
- 鏡を並べて貼った時のつなぎ目はどうなり…
- 鏡の重量はどれくらいですか?
- 送料や梱包費はおいくらですか?
- 大量にほしいのですが少しお安くなりませ…
- 鏡を取付けるミラーマットや金具は、鏡に…
- ピアノ線がないのですが、購入できますか?
- 鏡の「壁への貼付け方(取り付け方)」を…
- 鏡の取付にオススメな下地はありますか?
- 縦長の規格鏡を横長にして使用しても問題…
- 「鏡を交換」したいのですが、どうすれば…
- 浴室の鏡が「キャビネット」の中に入って…
- 鏡の寸法公差(サイズの誤差)はどれくらい…
- 全身映る鏡のサイズは?
- 施工や交換・採寸に出張で来てもらうこと…
- 枠をつけることはできますか?
- 映像に歪みはありませんか?
- キャスターの付いた鏡はありませんか?
- パネル(裏板)の厚みは何ミリですか?
- 割れないスタンドパネルミラーは製作でき…
- 高精彩ミラーのスタンドパネルミラーは製…
- 割れて危険ではありませんか?
- 表面反射鏡の用途は?
- 高精彩ミラーと高透過ミラーは同じですか?
- ヨゴレーヌお試しサンプルの初期調整はど…
- ヨゴレーヌのお手入れはどのようにするの…
- エレベーターミラーはどうやって壁に貼り…
- エレベーターの中に鏡があるけど何のため?
- エレベーター用ミラー(枠あり)の 枠の図面…
- 配線が出ていて難しそうですが、どうやっ…
- 曇り止めヒーターの詳細を教えてください
- 電源ユニット部の切り抜きのサイズを教え…
- コーナーを丸くする加工は出来ませんか?
- 枠付のミラーは作れますか?
- オンデマンドミラー印刷した鏡は屋外や水…
- 鏡の表面に印刷するの?
- データの作成はどうすればいいですか?
- カッティングシート(名入れシール)の貼り…
- 文字のフォントは選べますか?
- 名入れのテンプレートのようなものはあり…
- 会社などのロゴなども名入れすることは出…
- 文字サイズの最小サイズは?
- 文字の色は白のみですか?
- 広幅面取りのサイズのイメージが付きません
- どの処理を選べばいいのか迷います
- 型紙はどんな紙にとればいいですか?
- 小判形の鏡を注文する場合、図面や型紙は…
- 図面などを送って図面通りの形状の鏡を作…
- 取付金具とミラーマットを併用したほうが…
- ステンレス鏡受けを使って床から天井まで…
- 取付金具を使用し、開口サイズが決まって…
- ミラーボンドを使用して残った場合はどの…
- 速乾ボンドはどのような場合に必要ですか?
- ブチルテープや速乾ボンドはどうやって購…
- 連結部分は綺麗になりますか?
- 壁側のビスは付属していますか?
- 1800ミリのL字アングルを半分にして900ミ…
- 石膏ボードに取付けられますか?
- パネルミラーや金物はいくらしますか?
- パネルミラーってなんですか?
- パネルミラーを床から浮かせて壁に固定す…
- ミラーマットや速乾ボンドなど販売してい…
- お風呂や脱衣所などでもミラーマットのみ…
- 大きな鏡はどのように施行すればいいです…
- 鏡の重量 の求め方を教えてください
- 自分で「大きな鏡」を貼り付けできるか心…
- タイルに穴を開けても割れませんか?
- 鏡を連続で並べて貼りたいのですがこの施…
- ステンレス鏡受け(片長チャンネル)のサイ…
- 連続貼りは初心者でも出来ますか?
- ツメ金具のみで販売していただけますか?
- フィルムが破れた場合、修理することは可…
- 「確認用の図面」を作ってもらえますか?
- 女性ですが「大きな鏡」を持つことができ…
- 保証期間を過ぎるとどうなりますか?
- いろいろ鏡の種類があって、どれを選べば…
- 鏡の交換に使う用品の販売もしていますか?
- ツメ金具も交換したいのですが販売してい…
- 浴室鏡の交換に来てもらえませんか?
- PPバンドってなんですか?
- PPバンドやピアノ線がないのですが、購入…
- ピアノ線やPPバンドでやってみましたが硬…
- どのような形式で図を送ればいいですか?
- 参考価格を教えてください。(どのくらい安…
- 枠を付けることはできますか?(枠を付ける…
- 納期はどのくらい掛かりますか?
- ステンドグラス風ミラーの表面はどんな感…
- レトロ感を高めた雰囲気のあるステンドミ…
- 円形(丸形)のステンドミラーは作れますか?
- 描線を黒以外で作ることはできますか?
- 取り付け方を教えて下さい
- ガラスミラー(ガラス製の鏡)はどのくらい…
- どんな鏡を修理できますか?
- 枠無しの鏡は修理できますか?
- 修理価格はどのくらいになりますか?
- 鏡はどのように送ればいいですか?
- 壁に貼ってある鏡の修理や交換に来てもら…
- 布や皮の枠に挟まれているタイプの手鏡の…
- 「デザインガラスサンプル・アソートボッ…
- 個人事業主でも登録は可能ですか?
- ガラス店(サッシ店)でも登録は可能ですか?
- 領収書が同封されていなかったのですが、…
- 出荷証明書を出してもらう方法を教えて。
- 商品を取りに行くので、送料を安くできま…
- 壁に丸い鏡を貼りたいのですが、どうすれ…
- 鏡1枚でも送ってもらえますか?
- 短納期希望なのですが…
- 頼んでいる施工業者と直接やりとりして欲…
- 鏡の貼り付けの施工に来ていただけません…
- 鏡を貼るための金具はありますか? 金具…
- 「コーキングガン」の使い方が分かりませ…
- 壁に貼りつけてある鏡を交換したいのです…
- 注文可能な鏡の枚数を教えて。
- サイズを間違えて注文してしまいました
- 飛散防止フィルムを貼っていないミラーは…
- どんな加工やどんな形まで出来るのですか?
- 万が一、商品到着後ひび割れなどあった場…
- 鏡(ミラー)を裁断のみで注文した場合、手…
- サンプルはありますか?
- 枠の付いた鏡を買えるサイトを教えて。
- 返品・交換
- どのようなお支払方法がありますか?
- 配送料について
- 領収書の発行について
- 鏡を貼るためのツメ金具のサイズは?



































